Low-maintenance seaside living with onsite manager and guest suite access.
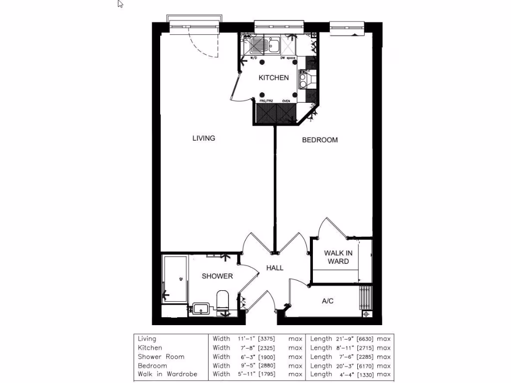
One-bedroom first-floor apartment with Juliet balcony
A bright one-bedroom retirement apartment on the first floor with a Juliet balcony overlooking well-kept communal gardens. The living room comfortably accommodates seating and dining furniture; the fitted kitchen includes integrated appliances and the bedroom benefits from a walk-in wardrobe. Overall accommodation is presented in good order and suits a single occupant or couple seeking low-maintenance, sheltered living near Deal seafront.
The development prioritises resident safety and convenience: an onsite Lodge Manager five days a week, a 24-hour Careline alarm, secure entry, and communal grounds. Heating is provided via a ground-source community scheme and is included in the annual service charge, simplifying monthly outgoings. Owners also have access to an on-site guest suite and use of guest suites at other Churchill Living developments across the country.
Practical points to note: the apartment is leasehold (approximately 979 years remaining) and sold chain free. The service charge is £3,131.82 per year and the ground rent is £575 per year (review due May 2026). These fees cover heating, buildings insurance, communal cleaning, garden maintenance and the Lodge Manager but will add to ongoing costs.
Located a short walk from Deal’s seafront, local shops, cafés and the market, Goodwin Lodge sits in a quiet, affluent area with fast broadband and low flood risk. The block and grounds are low-maintenance and designed for independent retirement living with social events and communal facilities included.
2 bedroom retirement property for sale in Goodwin Lodge, Deal, CT14 — £420,000 • 2 bed • 2 bath • 837 ft²
1 bedroom retirement property for sale in Ark Lane, Deal, Kent, CT14 — £240,000 • 1 bed • 1 bath • 572 ft²
2 bedroom flat for sale in Beechwood Avenue, Deal, Kent, CT14 — £189,995 • 2 bed • 1 bath • 712 ft²
1 bedroom retirement property for sale in Beechwood Avenue, Deal, CT14 — £139,950 • 1 bed • 1 bath • 560 ft²
1 bedroom flat for sale in Queen Street, Deal, CT14 — £110,000 • 1 bed • 1 bath • 506 ft²
1 bedroom apartment for sale in Elkington House, Charlton Green, Dover, CT16 — £130,000 • 1 bed • 1 bath • 563 ft²


























































