M1 3HW - 1 bed vaulted mezzanine city apartment in Chorlton Street,…

View on Property Piper

1 bedroom apartment for sale in Chorlton Street, Manchester, Greater Manchester, M1

Summary - LEXINGTON, 42 FLAT 25 CHORLTON STREET MANCHESTER M1 3HW

1 bed 1 bath Apartment

Light-filled Victorian conversion with mezzanine office in central Manchester, ideal for investors or city living.
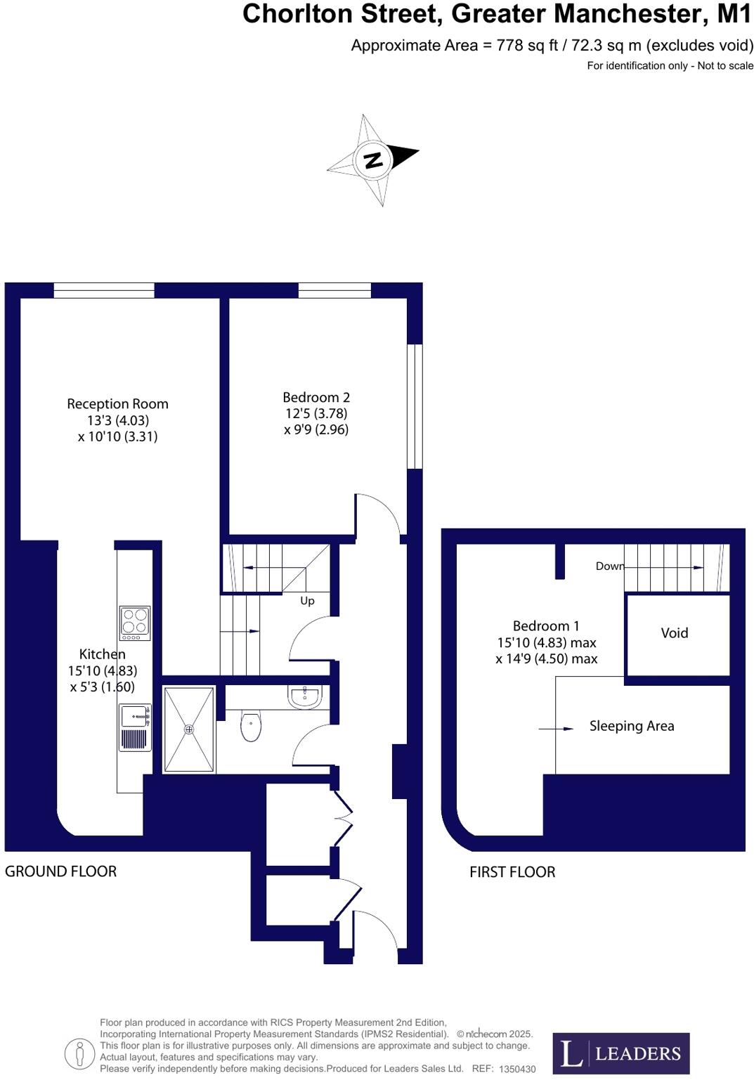
Large one-bedroom duplex with mezzanine office and high vaulted ceilings
Set within an attractive Victorian school conversion on Chorlton Street, this large one-bedroom duplex offers dramatic vaulted ceilings and abundant natural light. The open-plan living area and mezzanine office create flexible space well suited to city living or rental use. Original period features combine with contemporary touches such as wooden flooring and a floating staircase to give real character.

Practical details matter: the property is leasehold with 97 years remaining, an annual service charge of £1,960 and no ground rent. Heating is via electric storage heaters and walls are likely uninsulated solid brick — factor potential running costs and retrofit work into plans. EPC is pending; buyers should budget for energy improvements.

This location places Manchester’s amenities, transport and student populations on the doorstep, supporting either city-centre living or a buy-to-let strategy aimed at professionals or students. The mezzanine suits a home office or creative studio, increasing the apartment’s versatility. Note the local area is described as a multicultural student neighbourhood with higher area deprivation — consider demand and management implications if letting.

Overall, this is a distinctive, light-filled city centre apartment with strong visual appeal and flexible space. It requires attention to energy efficiency and leasehold/service-charge considerations but offers a rare, characterful alternative to standard one-bed flats in Manchester.

Property Details

Image Descriptions

Floorplan Description

Rooms

Textual Property Features

Target Audience

AI Tags

Detected Visual Features

EPC Details

Nearby Schools

Nearest Bars And Restaurants

,,,,}

Nearest General Shops

,,}

Nearest Grocery shops

,,}

Nearest Supermarkets

,,}

Nearest Religious buildings

,,}

Nearest Medical buildings

,,,}

Nearest Airports

}

Nearest Leisure Facilities

,,,,}

Nearest Tourist attractions

,,}

Nearest Train stations

,,,,}

Nearest Bus stations and stops

,,,,}

Nearest Hotels

,,}

Tags

Local Market Stats

AirBnB Data

Similar Properties

Meta

High Res Images

Compatible Images

Low res Images

Thumbnails

Raw Images

High Res Floorplan Images

Compatible Floorplan Images

Low res Floorplan Images

FloorplanImages Thumbnail

Raw Floorplan Images