**Standout Features:**
- Versatile Victorian end of terrace property currently configured as two one-bedroom maisonettes.
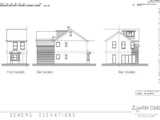
- Planning permission secured to revert to a freehold three-bedroom house, with potential for loft conversion and double-story side extension.
- Prime town center location with excellent mobile and broadband connectivity.
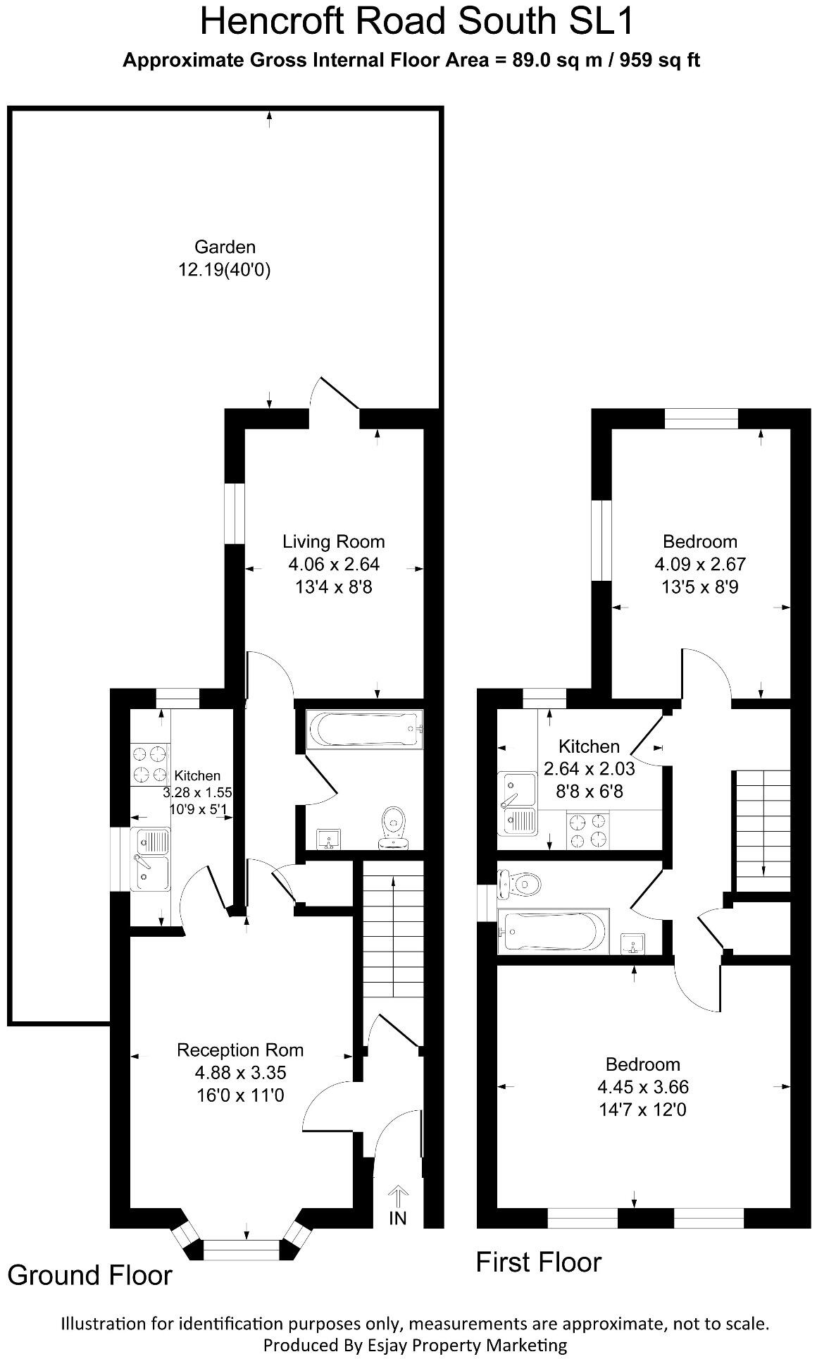
- Off-street parking and enclosed 40ft garden with patio and flower borders.
- Close proximity to reputable schools and local amenities.
**Potential Downsides:**
- Property located in an area with high crime rates.
- Needs maintenance and renovation to realize its full potential.
Discover the opportunity to transform this charming Victorian end of terrace into your dream family home or lucrative investment. Currently set as two leasehold maisonettes, the property offers a flexible layout that can effortlessly revert to a spacious three-bedroom residence. With approved planning permissions for a further loft extension and side addition, the future possibilities are expansive.
Located in Slough’s vibrant town center, this property is surrounded by essential amenities and top-rated schools, making it ideal for families. The enclosed garden provides a private outdoor space, while off-street parking eases the hustle of urban living. Despite the urban setting, the warmth of character resonates throughout—from the traditional bay window to the contemporary living spaces filled with natural light.
Whether you're an investor seeking rental potential or a family envisioning a future in this transforming area, act swiftly—properties with such significant potential don’t stay on the market for long!
3 bedroom house for sale in Slough, SL1 — £450,000 • 3 bed • 1 bath • 863 ft²
5 bedroom end of terrace house for sale in Wellesley Road, Slough, SL1 — £480,000 • 5 bed • 3 bath • 1174 ft²
2 bedroom ground floor flat for sale in Hencroft Street South, SLOUGH, SL1 — £275,000 • 2 bed • 2 bath • 732 ft²
2 bedroom end of terrace house for sale in The Crescent, Slough, Berkshire, SL1 — £350,000 • 2 bed • 1 bath • 669 ft²
3 bedroom end of terrace house for sale in Colonial Road, Slough, SL1 — £425,000 • 3 bed • 2 bath • 1066 ft²
2 bedroom terraced house for sale in Slough, Berkshire, SL1 — £300,000 • 2 bed • 1 bath • 833 ft²














































