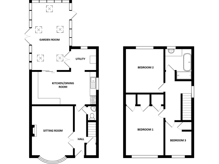
Bright extended house with conservatory, parking and easy access to good schools.
- Detached three-bedroom family home in quiet cul-de-sac
- Recently refurbished bathroom; 20 ft kitchen-dining room
- Double-glazed south-facing conservatory / large sunroom
- Block-paved driveway with parking for two cars
- Decent enclosed rear garden with paved patio seating area
- Single bathroom only — consider adding additional facilities
- Freehold, gas central heating, very low local crime
- Fast broadband and excellent mobile signal
Tucked into a quiet cul-de-sac in Felpham, this three-bedroom detached house offers generous family living with recent improvements and a bright, south-facing conservatory. The present owner has extended and upgraded parts of the home, including a contemporary bathroom, a 20 ft kitchen-dining space and a utility-room extension, creating flexible living space for everyday family life.
Outside, the property sits on a decent plot with a block-paved driveway for two cars, a paved entertaining patio and an enclosed lawn with established planting — low-maintenance and private. Practical details that matter are in place: gas central heating, uPVC double glazing, freehold tenure, very low local crime and fast broadband/mobile signal.
This home will suit growing families who value space, good local schools and a calm residential setting. There is clear scope to add value by updating some interior finishes to your taste, despite the recent bathroom and other improvements. Note there is a single bathroom for three bedrooms, which may be a consideration for larger families or households wanting multiple bathrooms.
Overall the property combines solid 1970s construction with contemporary touches and everyday convenience. It’s ready to occupy while offering straightforward potential for further modernisation to raise comfort and resale value.
3 bedroom semi-detached house for sale in Ullswater Grove, Felpham, Bognor Regis, West Sussex, PO22 — £385,000 • 3 bed • 1 bath • 1140 ft²
3 bedroom semi-detached house for sale in Westmorland Drive, Felpham, (Just 0.8 miles from the Beach), PO22 — £399,950 • 3 bed • 1 bath • 1002 ft²
3 bedroom detached house for sale in Outerwyke Road, Felpham, Bognor Regis, West Sussex, PO22 — £425,000 • 3 bed • 1 bath • 1369 ft²
3 bedroom semi-detached house for sale in Wood Hill Way, Felpham, Bognor Regis, West Sussex, PO22 — £340,000 • 3 bed • 2 bath • 1092 ft²
3 bedroom semi-detached house for sale in Felpham Way, West Sussex, PO22 — £375,000 • 3 bed • 1 bath
3 bedroom semi-detached house for sale in Ferndown Gardens, Felpham, Bognor Regis, West Sussex, PO22 — £350,000 • 3 bed • 1 bath • 1042 ft²


































































