WF17 7QN - 3 bedroom semidetached house for sale in Bunkers Lane, Batl…

View on Property Piper

3 bedroom semi-detached house for sale in Bunkers Lane, Batley, WF17

Summary - 17 BUNKERS LANE BATLEY WF17 7QN

3 bed 1 bath Semi-Detached

**Standout Features:**
- Character property with original features including high ceilings and exposed beams
- Impeccably maintained with modern conveniences, including a newly installed boiler
- Spacious dining kitchen, lounge, and three double bedrooms
- Driveway and two garages, plus a low-maintenance garden with a versatile garden room
- Chain-free sale

---

Discover a stunning character property that perfectly blends traditional charm with modern living. Offering three spacious double bedrooms and a thoughtfully designed dining kitchen that opens to a generous lounge, this semi-detached home is ideal for families and first-time buyers alike. The high ceilings and exposed beams provide a unique appeal, while contemporary upgrades like a newly installed boiler and double glazing ensure comfort.

Externally, you'll appreciate the convenience of a driveway, two garages, and a low-maintenance garden featuring a delightful garden room—perfect for a home office, studio, or tranquil relaxation space. Positioned near local schools with “Good” Ofsted ratings and essential amenities, this property embodies family-friendly living with great rental potential.

While the neighborhood experiences above-average crime rates and is categorized as deprived, its vibrant community and accessibility to shops and public transport offer a promising upside. Don't miss your chance to own this exceptional home—schedule a viewing today and envision your future in this charming property!

Property Details

Image Descriptions

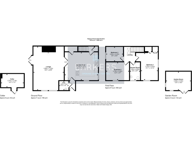
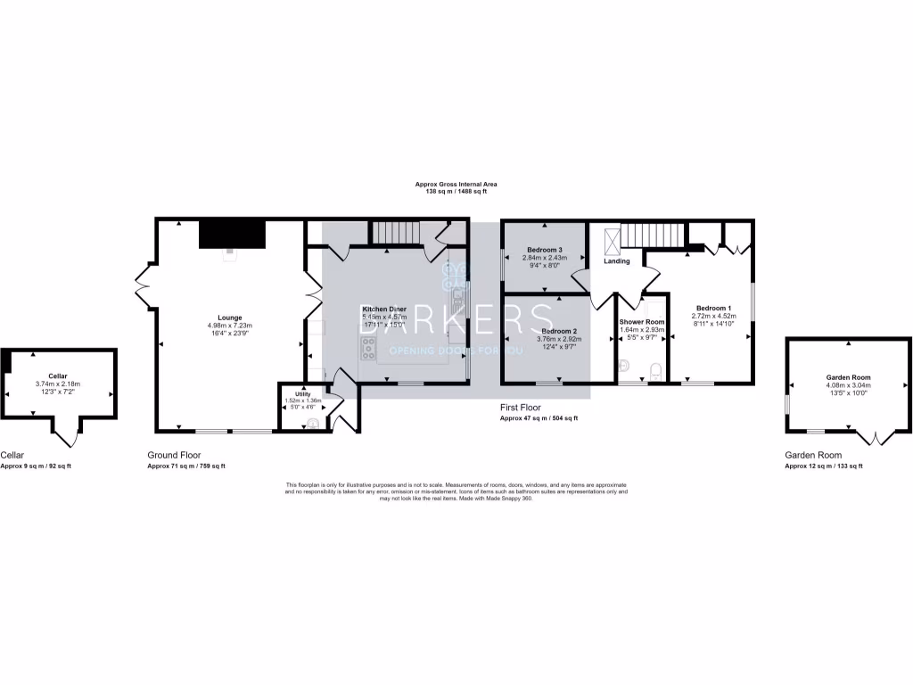
Floorplan Description

Rooms

Textual Property Features

Detected Visual Features

EPC Details

Nearby Schools

Nearest Bars And Restaurants

,,,,}

Nearest General Shops

,,}

Nearest Grocery shops

,,}

Nearest Supermarkets

,,}

Nearest Religious buildings

,,}

Nearest Medical buildings

,,,}

Nearest Airports

}

Nearest Leisure Facilities

,,,,}

Nearest Tourist attractions

,,}

Nearest Train stations

,,,,}

Nearest Bus stations and stops

,,,,}

Nearest Hotels

,,}

Tags

Local Market Stats

AirBnB Data

Similar Properties

Meta

High Res Images

Compatible Images

Low res Images

Thumbnails

Raw Images

High Res Floorplan Images

Compatible Floorplan Images

Low res Floorplan Images

FloorplanImages Thumbnail

Raw Floorplan Images