Compact, well-presented two-bedroom next to seafront and transport links.
Chain free top-floor flat, ready to move into
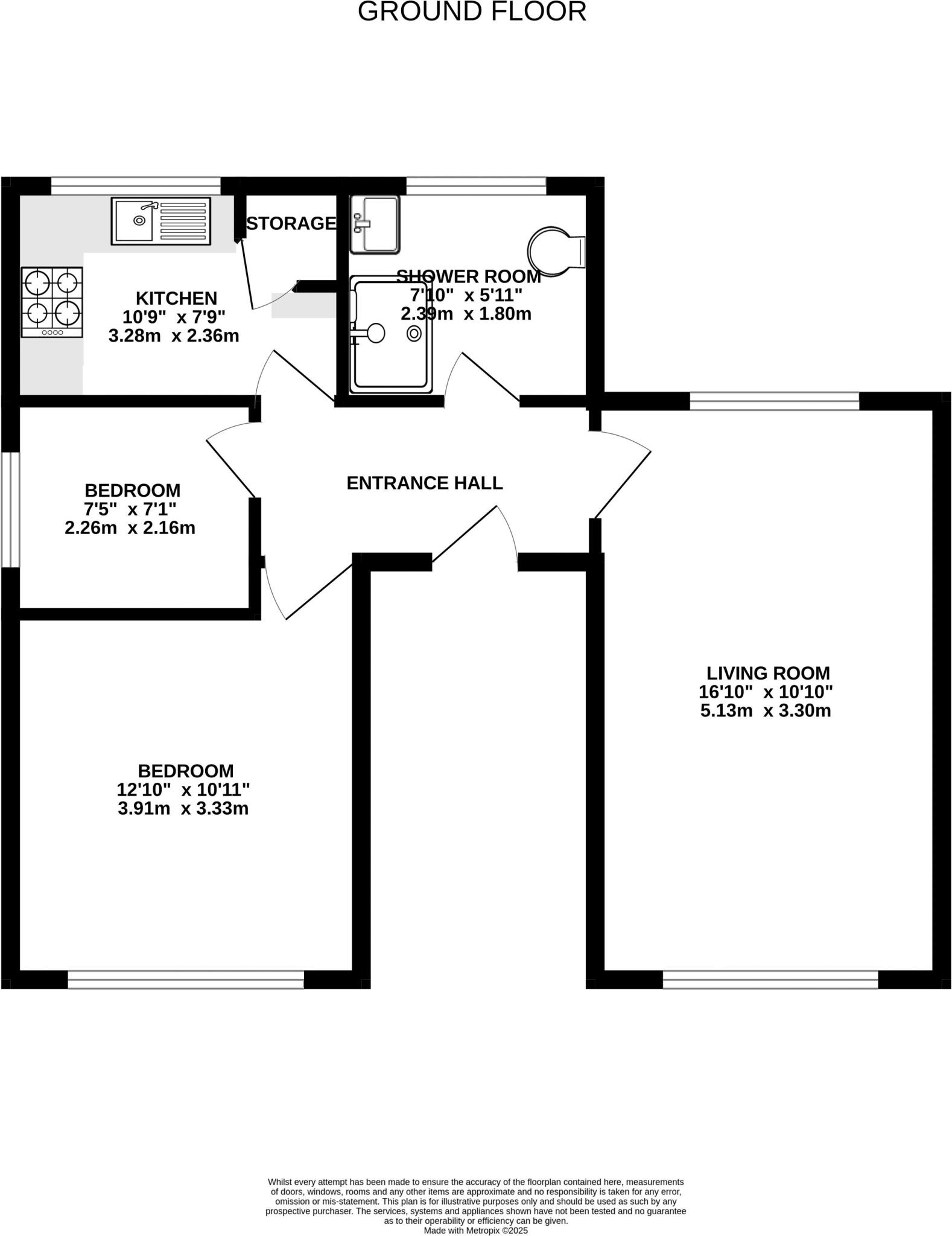
Dual-aspect living room with strong natural light
Recently modernised shower room, practical fitted kitchen
Two bedrooms suitable for sharers or home office
Compact 506 sq ft — small overall footprint
Leasehold tenure; check lease length and service charges
No private outdoor space or garage; top-floor stairs only
1930s cavity walls (no known added insulation) may affect efficiency
A bright top-floor two-bedroom flat in central Southsea, offered chain free and ready to move into. The dual-aspect living room and recently modernised shower room give the apartment a fresh, comfortable feel, while two workable bedrooms suit sharers, home working or guests. At 506 sq ft this is a compact home designed for city living.
The location is the standout asset: St. Ronan’s Road places shops, transport links and the seafront within easy walking distance. Excellent mobile signal and fast broadband make the flat practical for commuters and students, while nearby schools and local amenities support family or professional lifestyles.
Practical points to note: the property is leasehold and sits on the top floor (no lift), so stair access is required. The building dates from the 1930s with cavity walls and no known added insulation, which may affect energy performance and running costs. There is no private outdoor space or garage.
Overall this is a well-presented, small city flat that will suit first-time buyers looking for a manageable, well-located starter home or investors seeking a straightforward buy-to-let in a popular Southsea pocket.
2 bedroom flat for sale in Granada Road, Southsea, PO4 — £195,000 • 2 bed • 1 bath • 501 ft²
2 bedroom flat for sale in Waverley Road, Southsea, Hampshire, PO5 — £200,000 • 2 bed • 1 bath • 738 ft²
2 bedroom flat for sale in Cecil Place, Southsea, Hampshire, PO5 — £170,000 • 2 bed • 1 bath • 595 ft²
2 bedroom flat for sale in Elphinstone Road, Southsea, PO5 — £185,000 • 2 bed • 1 bath • 621 ft²
2 bedroom flat for sale in Campbell Road, Southsea, PO5 — £195,000 • 2 bed • 1 bath • 711 ft²
2 bedroom flat for sale in Clarendon Road, Southsea, PO4 — £170,000 • 2 bed • 1 bath • 609 ft²


























































