**Standout Features:**
- Newly renovated one-bedroom flat in Blackheath Village
- High ceilings and period fireplace in the reception room
- Direct access to a shared garden
- Proximity to local amenities and the train station (200 yards away)
- Share of freehold with 986 years remaining on the lease
- Chain-free transaction
**Summary:**
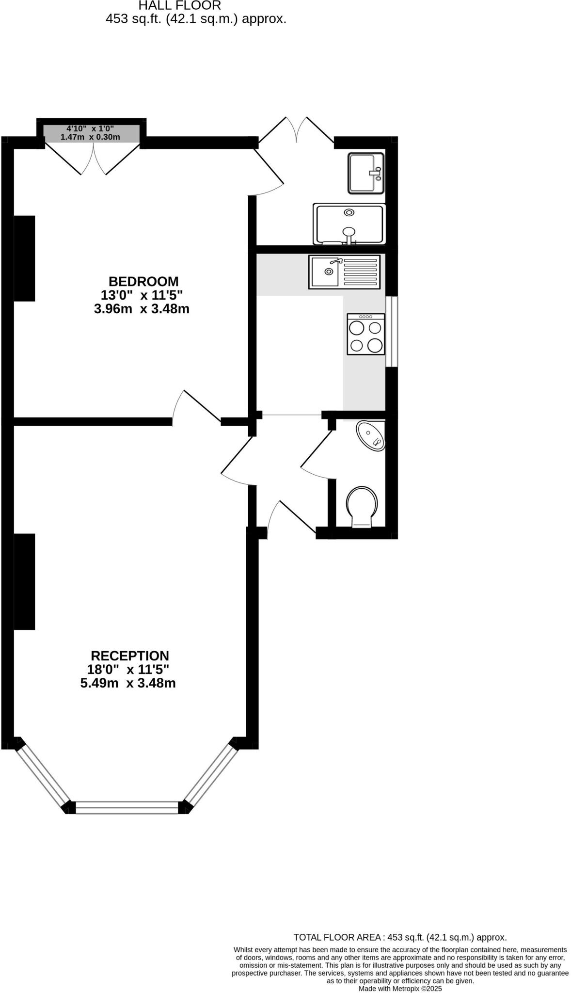
Nestled in the heart of Blackheath Village, this beautifully renovated one-bedroom hall-floor conversion flat boasts a timeless Victorian façade and elegant features including tall bay windows and soaring ceilings. The inviting reception room is perfect for entertaining, adorned with a period fireplace and flooded with natural light. A modern kitchen showcases stylish white cabinetry and built-in appliances, making it a joy to cook and entertain.
The spacious bedroom benefits from French doors leading to a balconette, while the newly refurbished shower room offers direct access to the communal garden, blending indoor comfort with outdoor relaxation. With excellent transport links just a stone's throw away and an array of local cafes, shops, and amenities nearby, this property is perfect for urban professionals or first-time buyers seeking an exclusive home in a vibrant community. Don't miss this opportunity—a modern retreat with classic charm in a prime location won't last long!
1 bedroom apartment for sale in Bennett Park, Blackheath, London, SE3 — £400,000 • 1 bed • 1 bath • 475 ft²
1 bedroom flat for sale in Montpelier Row, London, SE3 — £490,000 • 1 bed • 1 bath • 646 ft²
1 bedroom flat for sale in Church Terrace, London, SE13 — £395,000 • 1 bed • 1 bath • 566 ft²
2 bedroom flat for sale in Bennett Park, London, SE3 — £550,000 • 2 bed • 1 bath • 747 ft²
1 bedroom flat for sale in Montpelier Row, London, SE3 — £500,000 • 1 bed • 1 bath • 688 ft²
Studio apartment for sale in Bennett Park, Blackheath, SE3 — £240,000 • 1 bed • 1 bath • 308 ft²






































