Chain free, set in approx. 1.22 acres of landscaped gardens
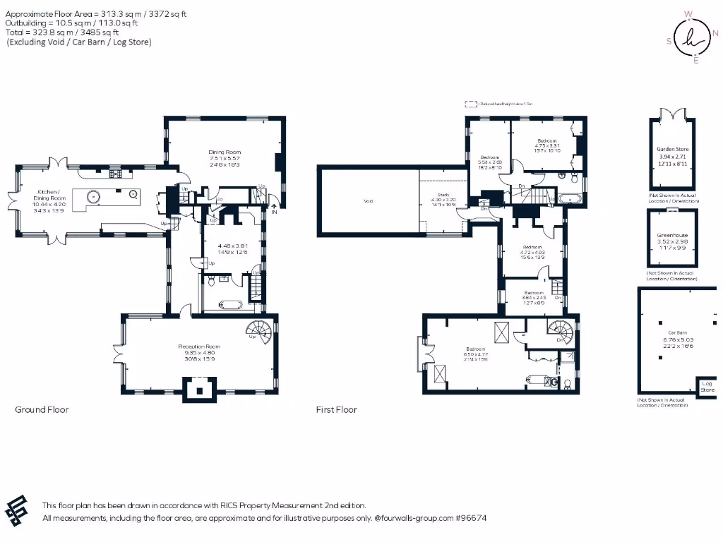
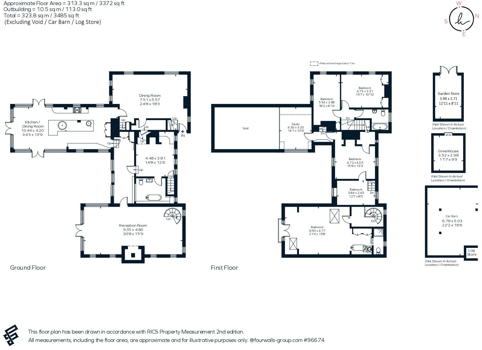
Set in about 1.22 acres of landscaped gardens, this secluded period home combines 16th‑century character with a sympathetic modern extension. Vaulted, beamed interiors and large rooms create dramatic living spaces — a glazed barn‑style kitchen with mezzanine study and a huge adjacent dining room are highlights for family life and entertaining. The principal suite is particularly impressive, with vaulted ceiling, boutique en‑suite and French doors opening to the garden.
The plot is a major asset: varied seating areas, wildflower meadow, pond with bridge and mature tree screening provide privacy and picturesque views. Practical features include a double car barn with EV charging, ample parking and solar panels that materially reduce running costs. The house is offered chain free and sits conveniently between Ifield, Rusper and larger towns; Ifield station is under 2 miles for commuter access.
There are some maintenance considerations to note. Several outbuildings and estate features are described as needing maintenance, and the property’s size and period fabric will demand ongoing upkeep. Council Tax is Band G, which is relatively expensive. Mobile signal is average despite fast broadband; the setting is semi‑rural and feels remote, which suits buyers seeking privacy but may not suit those wanting town centre immediacy.
This is a flexible family home for buyers who value character, privacy and generous outdoor space, and who are prepared for the upkeep of a large, historically evolved property. Its combination of charm, modern convenience and significant plot make it rare in the local market.
4 bedroom detached house for sale in Bognor Road, Horsham, RH12 — £1,300,000 • 4 bed • 3 bath • 3018 ft²
3 bedroom detached house for sale in Ifield, Crawley, RH11 — £695,000 • 3 bed • 2 bath • 1489 ft²
5 bedroom detached house for sale in Rusper Road, Ifield, RH11 — £1,295,000 • 5 bed • 4 bath • 4077 ft²
5 bedroom detached house for sale in Nuthurst Street, Nuthurst, Horsham, West Sussex, RH13 — £900,000 • 5 bed • 2 bath • 1187 ft²
5 bedroom detached house for sale in East Street, Horsham, RH12 — £995,000 • 5 bed • 3 bath • 1983 ft²
4 bedroom detached house for sale in Horsham Road, Crawley, West Sussex, RH11 — £780,000 • 4 bed • 3 bath • 2400 ft²














































































































































































