Single-level seaside home with big garden and modernisation potential.
Chain-free freehold bungalow on large plot with attached garage
Walking distance to Holland-on-Sea seafront and local amenities
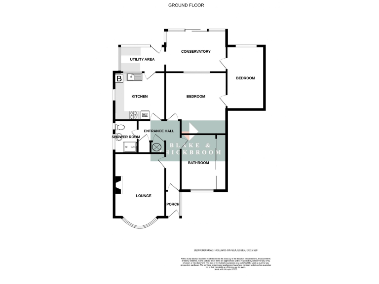
Single-storey layout: three bedrooms, one bathroom, 1,091 sq ft
EPC rated E; likely energy upgrades and insulation required
Mid-20th-century build with dated interior needing modernisation
Cavity walls assumed uninsulated — potential for retrofit insulation
Council Tax Band C; low local crime and fast broadband/mobile
One bathroom only — may limit some buyers without reconfiguration
This three-bedroom detached bungalow on Bedford Road offers comfortable single-level living with a large plot and attached garage, ideal for buyers seeking a low-stairs home close to the coast. Its mid-20th-century layout is straightforward and generous in proportion, with bay windows and a fireplace giving the living room character. The property is chain-free and freehold, which simplifies moving for downsizers or those relocating to the area.
The location is a strong selling point — within walking distance of Holland-on-Sea’s seafront, promenade and local shops. Good local schools and plentiful amenities are nearby, and the area benefits from low crime and excellent mobile signal and broadband. The bungalow’s 1,091 sq ft footprint provides a solid base for comfortable retirement living or long-term occupancy.
The house does need updating: decor and some fixtures are dated and there’s clear potential for modernization to improve comfort and efficiency. The EPC rating E and cavity walls assumed to have no insulation indicate future energy-efficiency work may be needed. There is a single bathroom, which may limit suitability for some households without reconfiguration.
Overall, this property suits buyers looking for a single-storey home close to the coast with scope to add value through cosmetic improvement and energy upgrades. Viewing is recommended to appreciate the layout, plot size and seaside setting.
2 bedroom detached bungalow for sale in Preston Road, Holland-on-Sea, CO15 — £310,000 • 2 bed • 1 bath • 742 ft²
2 bedroom detached bungalow for sale in Frinton Road, Holland on Sea, CO15 — £320,000 • 2 bed • 2 bath
3 bedroom detached bungalow for sale in Hillside Crescent, Holland on Sea, CO15 — £215,000 • 3 bed • 1 bath • 866 ft²
3 bedroom detached bungalow for sale in Nottingham Road, Holland-on-Sea, CO15 — £378,000 • 3 bed • 1 bath • 830 ft²
2 bedroom detached bungalow for sale in Nansen Road, Holland-on-Sea, CO15 — £280,000 • 2 bed • 1 bath • 1096 ft²
2 bedroom semi-detached bungalow for sale in Chelmsford Road, Holland on Sea, CO15 — £230,000 • 2 bed • 1 bath • 760 ft²


















































