Contemporary apartment near hospital, university and train links.
Two bedrooms plus study/second bedroom with built-in storage
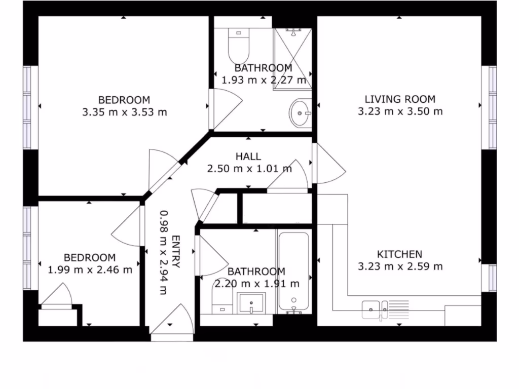
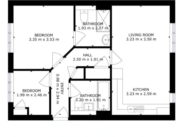
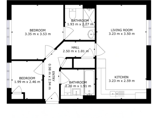
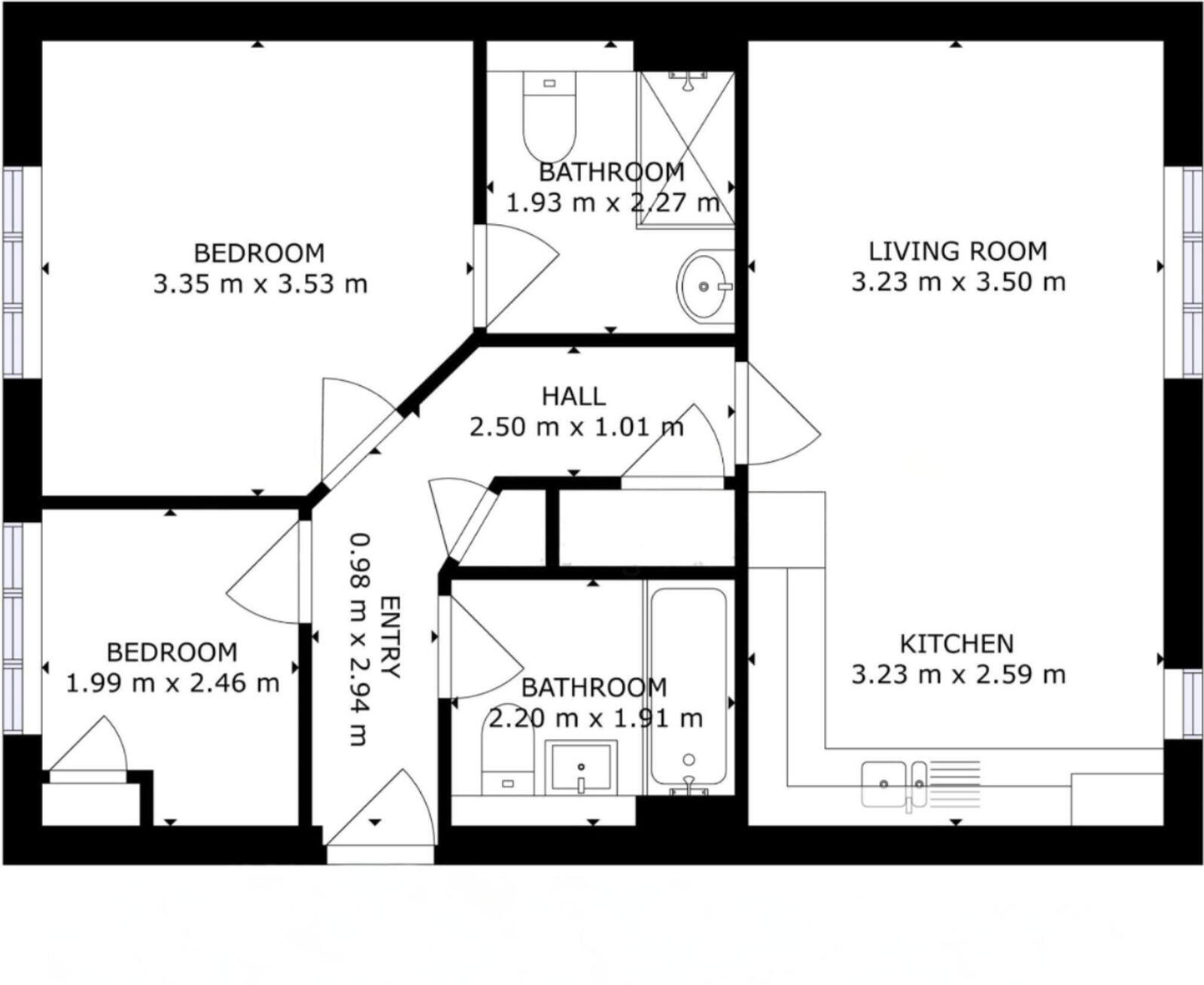
Bright, modern and well-presented, this two-bedroom apartment in the Charles Church development suits buyers seeking low-maintenance living near key local amenities. Built in 2019, the property benefits from contemporary finishes, integrated kitchen appliances, and a secure communal entrance with intercom.
The layout includes a main bedroom with en-suite, a second bedroom or study with built-in storage, and a family bathroom. An open-plan lounge/kitchen-diner creates a sociable living space, while two storage cupboards in the hallway help maximise usable space. An allocated off-street parking space and a small private garden add practical value for families.
Practical considerations are straightforward: the flat is leasehold (very long remaining term: 994 years) and totals about 542 sq ft, so accommodation is compact. The location is a strong draw — close to Queen Elizabeth Hospital, the University of Birmingham, Selly Oak station, good primary and secondary schools, bus links and retail amenities. This home will suit buyers wanting a modern, commuter-friendly base with easy access to local services.
2 bedroom apartment for sale in Macniece Close, Birmingham, West Midlands, B29 — £220,000 • 2 bed • 2 bath • 473 ft²
2 bedroom house for sale in Seymour Close, Selly Park, Birmingham, B29 — £165,000 • 2 bed • 1 bath • 618 ft²
2 bedroom apartment for sale in Macniece Close, Selly Oak, B29 — £200,000 • 2 bed • 2 bath
2 bedroom flat for sale in Ward Place, Selly Oak, Birmingham, B29 — £200,000 • 2 bed • 2 bath • 646 ft²
2 bedroom apartment for sale in Selly Wick Drive, Selly Park, Birmingham, West Midlands, B29 — £190,000 • 2 bed • 1 bath • 743 ft²
2 bedroom apartment for sale in Escelie Way, Birmingham, West Midlands, B29 — £190,000 • 2 bed • 1 bath • 527 ft²


























































