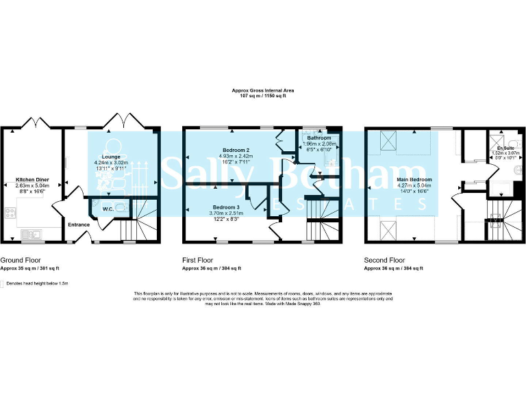
Three-floor family house with garden, garage and impressive valley views.
No onward chain — ready for a quicker sale process
Three bedrooms with master en-suite and family bathroom
Good-size dining kitchen with integrated appliances and breakfast bar
Enclosed rear garden with terrace and raised lawns
Garage plus off-road parking at the rear
Superb far-reaching countryside views from principal bedroom
Built post-2007; double glazing and mains gas central heating
Three-storey layout may challenge very young or less mobile occupants
This contemporary three-bedroom semi-detached home is arranged over three floors, offering a flexible family layout with a master en-suite, family bathroom and cloakroom. The dining kitchen and sitting room both open to a pleasant, enclosed rear garden, while the second-floor principal bedroom enjoys far-reaching views over the Derwent Valley.
Practical features include a single garage with off‑road parking, gas central heating, double glazing and fast broadband and excellent mobile signal—useful for home working and family connectivity. Constructed after 2007, the property sits in a popular residential area within easy reach of Matlock town centre, local schools rated Good, and access to countryside and transport links.
The house is offered with no onward chain and presents straightforward move-in potential for a family. Note this is a multi-storey home (three floors), which may be less convenient for very young children or residents with limited mobility. Council Tax band D represents a moderate ongoing cost.
Overall this is a well-presented, modern family home in a quiet cul-de-sac, combining everyday convenience with attractive views and outdoor space. It will suit buyers seeking a contemporary house close to town amenities and the Peak District countryside.
3 bedroom semi-detached house for sale in Hillside Gardens, Matlock, DE4 — £299,995 • 3 bed • 2 bath • 1025 ft²
3 bedroom link detached house for sale in Morledge, Matlock. DE4 3SB, DE4 — £325,000 • 3 bed • 2 bath • 1166 ft²
3 bedroom detached house for sale in 1 Vale Rise, Matlock, DE4 — £375,000 • 3 bed • 2 bath • 946 ft²
3 bedroom town house for sale in Morledge, Matlock, Derbyshire, DE4 — £335,000 • 3 bed • 2 bath • 1005 ft²
4 bedroom detached house for sale in Hurds Hollow, Matlock, DE4 3LA, DE4 — £495,000 • 4 bed • 2 bath • 1497 ft²
4 bedroom detached house for sale in Hillcrest, Matlock, DE4 — £450,000 • 4 bed • 2 bath • 1343 ft²






















































