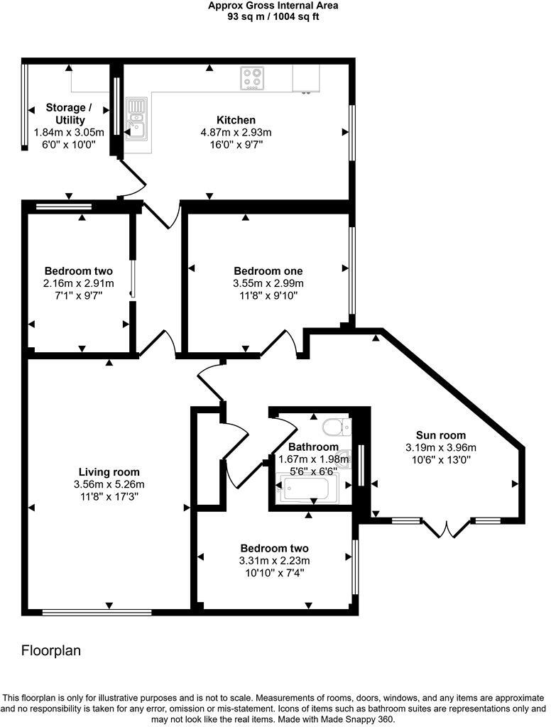
Single-level, low-maintenance living close to Fishguard amenities and coastal links.
- Three bedrooms, single-storey bungalow layout
- Modern kitchen with central island and breakfast bar
- Sun room provides extra light and storage space
- Allocated off-street parking plus on-street availability
- Low-maintenance front and rear decking areas
- LPG boiler heating; EPC rating D
- Ex-local authority tenure; local restrictive covenant applies
- Rear fence needs repair; single bathroom only
A well-presented three-bedroom semi-detached bungalow in the village of Scleddau, a short drive from Fishguard’s amenities and ferry terminal. The single-storey layout, sun room and modern kitchen with central island suit buyers seeking low-maintenance, comfortable living without stairs. Allocated off-street parking and a compact, decked rear garden add practical outdoor space.
Internally the home offers a bright living room, three bedrooms (one with built-in wardrobes) and a contemporary bathroom. Practical features include a tiled sun room, lean-to utility/storage area and double glazing. Heating is by an LPG boiler and radiators; the property has an EPC rating of D.
Notable points to consider: the bungalow is ex-local authority and subject to a local restrictive covenant. The property was built in the 1980s, so some buyers may want to check services, glazing installation dates and any maintenance history. The rear fence appears in need of attention and the single bathroom may be limiting for some households.
This home will appeal to first-time buyers, downsizers or investors wanting a straightforward, single-level property in a quiet village setting with quick access to coastal amenities. Viewing is recommended to assess the layout, storage and potential to personalise the exterior garden and boundary fencing.
2 bedroom detached bungalow for sale in 7 Maes Awel, Fishguard, SA65 — £199,950 • 2 bed • 1 bath • 827 ft²
3 bedroom bungalow for sale in Y Fraich, Fishguard, Pembrokeshire, SA65 — £299,950 • 3 bed • 1 bath • 1346 ft²
3 bedroom bungalow for sale in Bryn Siriol, Fishguard, Pembrokeshire, SA65 — £280,000 • 3 bed • 1 bath • 1173 ft²
3 bedroom bungalow for sale in Maesgwyn Road, Fishguard, Pembrokeshire, SA65 — £260,000 • 3 bed • 1 bath • 776 ft²
3 bedroom detached bungalow for sale in Clos Y Bigney, Fishguard, SA65 — £260,000 • 3 bed • 1 bath • 899 ft²
3 bedroom detached bungalow for sale in Dwrbach, Fishguard, SA65 — £300,000 • 3 bed • 1 bath • 1721 ft²


























































































