Versatile four-bedroom home with garden and parking, minutes from Chichester centre.
Double-fronted detached chalet bungalow in quiet tree-lined cul-de-sac
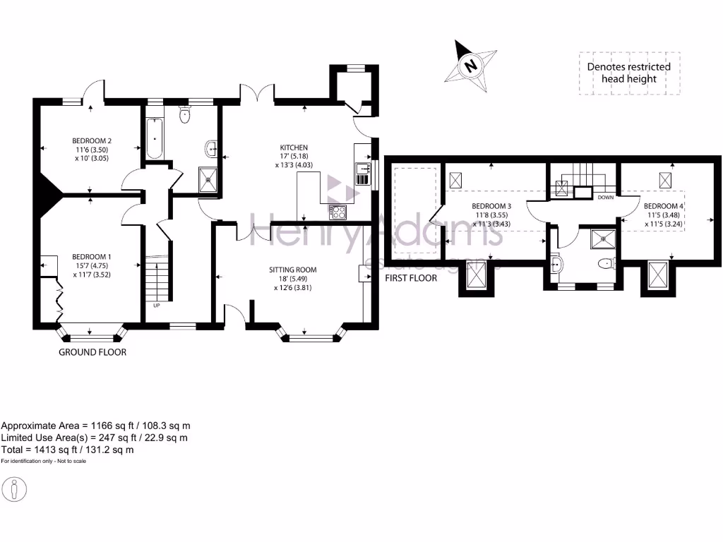
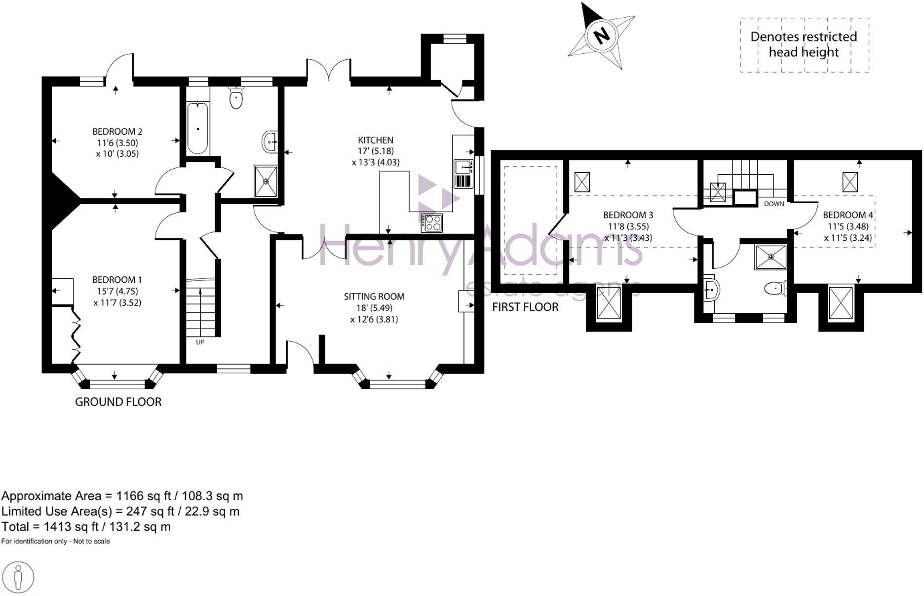
This double-fronted detached chalet bungalow sits in a mature, tree-lined cul-de-sac just a level six-minute walk from Chichester city centre. The house is arranged over ground and first floors, offering flexible living with bedrooms and bathrooms on both levels — ideal for families, home workers or downsizers who want single-level living with extra space upstairs.
A bright sitting room with a large bay window and wood-burning stove provides a cosy focal point, while the open-plan kitchen/dining room with French doors creates a natural flow to the paved rear garden for easy entertaining. The garden is well-established and low-maintenance, and there is private off-road parking reached via a shared driveway to the side and rear.
Practical details are favourable: mains gas central heating, cavity-filled walls and double glazing are in place, and the property sits on a decent plot. That said, the property is presented in a period style and would benefit from some updating and energy improvements — the EPC is E — so buyers should factor potential refurbishment or redecoration costs into their plans.
Overall this is a versatile, characterful home in a quiet, convenient location. It will suit purchasers seeking comfortable family accommodation close to schools and city amenities, or those wanting a centrally located bungalow with loft/first-floor space and scope to modernise subject to consent.
2 bedroom detached house for sale in Stirling Road, Chichester, PO19 — £550,000 • 2 bed • 2 bath • 906 ft²
2 bedroom detached bungalow for sale in The Peacheries, Chichester, PO19 — £450,000 • 2 bed • 1 bath • 646 ft²
3 bedroom bungalow for sale in Langdale Avenue, Chichester, West Sussex, PO19 — £365,000 • 3 bed • 1 bath • 808 ft²
2 bedroom bungalow for sale in Cedar Drive, Chichester, West Sussex, PO19 — £565,000 • 2 bed • 2 bath • 1132 ft²
1 bedroom semi-detached bungalow for sale in Oving Road, Chichester, PO19 — £399,000 • 1 bed • 1 bath • 636 ft²
3 bedroom detached bungalow for sale in Bourne Close, Fishbourne, Chichester, PO19 — £525,000 • 3 bed • 1 bath • 1294 ft²


































































































