Character home with south-facing garden and garage parking.
No onward chain — ready for quick sale
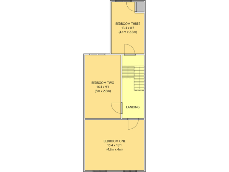
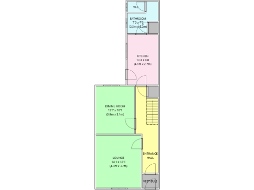
This Victorian mid-terrace offers generous proportions and strong potential for someone willing to update. High ceilings, original stone fireplaces and a south-facing front garden create character and scope to improve living space and value. The layout with two reception rooms and a ground-floor bathroom suits family life or rental use, while a single garage provides rare off-street parking for the area.
The house is offered with no onward chain and benefits from double glazing and mains gas central heating. Rooms are a good size for a mid-terrace and the property is conveniently placed for Devonport Dockyard, Plymouth city centre and local shops and schools. Practical features include a partly boarded loft, built-in storage and a rear courtyard with external access.
Important practical points: the property is dated and will need updating and modernisation to reach its full potential — cosmetic and likely selective refurbishment (kitchen, decoration, possibly doors/windows and insulation) are required. The walls are traditional granite/whinstone with assumed no insulation, and the EPC is D. The area has above-average recorded crime and higher local deprivation indicators which should be considered alongside the property’s strengths.
Overall this is a sensible purchase for a first-time buyer or small family who want period character, outdoor space and parking, and who are prepared to invest in modernisation to personalise the home or increase rental/market value.
3 bedroom terraced house for sale in Ford Park Road, Plymouth, PL4 — £280,000 • 3 bed • 1 bath • 1016 ft²
3 bedroom terraced house for sale in Ford Hill, Plymouth, Devon, PL2 — £240,000 • 3 bed • 1 bath • 1229 ft²
3 bedroom house for sale in Ganges Road, Plymouth, PL2 — £220,000 • 3 bed • 1 bath • 932 ft²
3 bedroom terraced house for sale in Seaton Place, Plymouth, PL2 — £200,000 • 3 bed • 2 bath • 1035 ft²
3 bedroom terraced house for sale in Northumberland Street, Plymouth. A 3 Bedroom Property with Garage and Garden. , PL5 — £195,000 • 3 bed • 1 bath • 1010 ft²
3 bedroom terraced house for sale in St. Michaels Terrace, Stoke, Plymouth., PL1 — £250,000 • 3 bed • 1 bath • 891 ft²










































































