Period character with HMO potential close to university and local amenities.
No upward chain — immediate completion possible
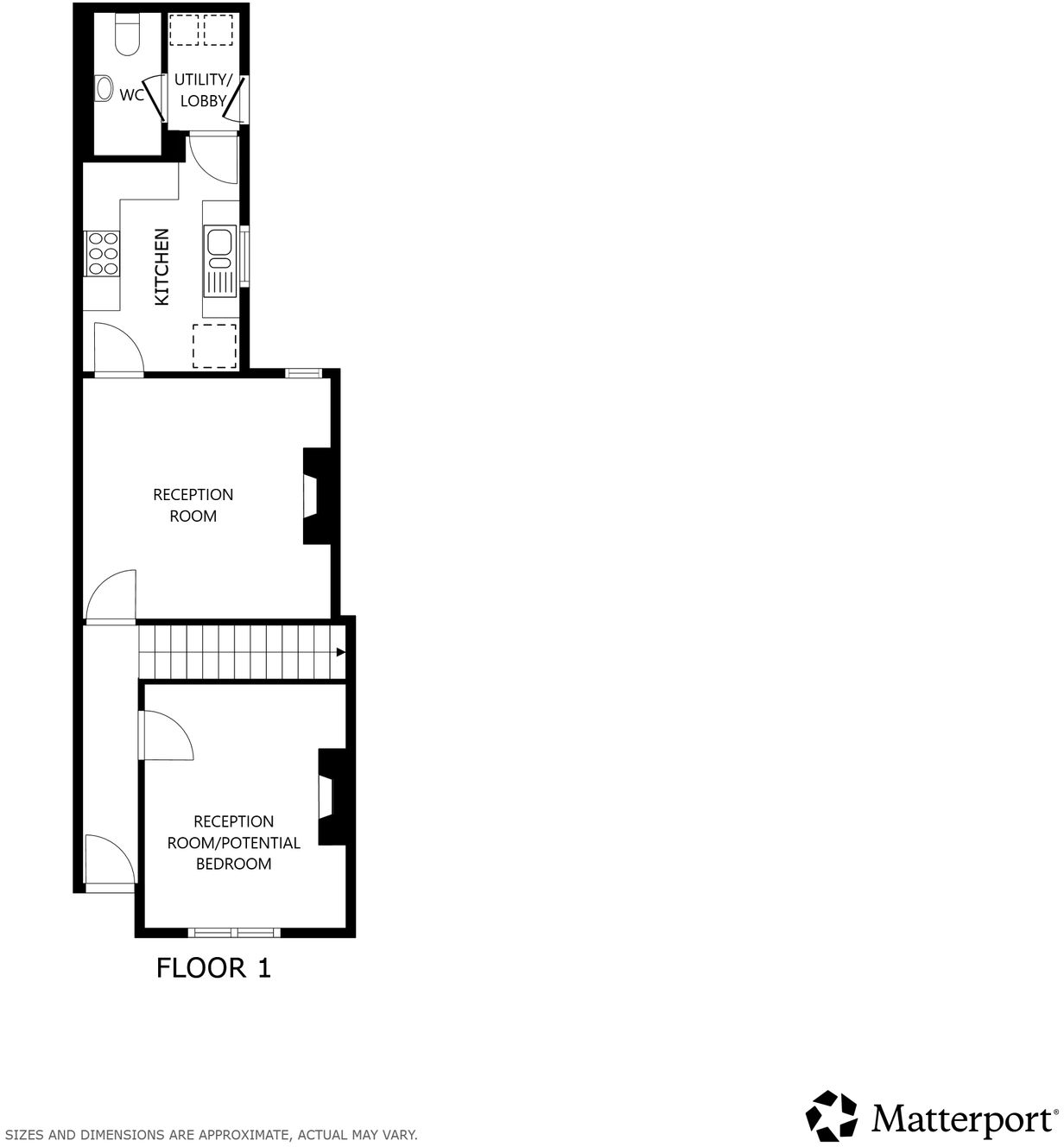
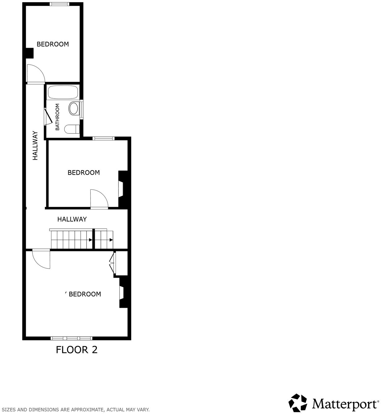
Available with no upward chain, this period mid-terrace on Lytham Road works well as a four-bedroom family home or an income-producing HMO. The house retains character features such as fireplaces and sash-style windows while offering practical updates: a loft conversion with a separate shower room, majority double glazing and gas central heating throughout.
Accommodation is arranged over multiple floors with two reception rooms, a kitchen with lobby/utility, ground-floor WC and four bedrooms served by a bathroom and an additional shower room. The footprint is typical of Victorian terraced stock — narrow laterally but deep, with well-proportioned rooms for this house type and good natural light to front and rear elevations.
Outside is a modest rear garden and on-street parking within a controlled permit zone — buyers should check local permit availability and costs. The property is sold with furniture included and lies close to local amenities, parks, hospitals and the university, making it suitable for family living or letting to students and professionals.
Notable practical points: the property holds an HMO licence (buyers should verify licence terms and transferability) and has an EPC rating of D. Built as solid-brick terrace stock likely without wall insulation, the house offers scope for energy improvements and cosmetic modernisation to boost value and comfort.
4 bedroom semi-detached house for sale in Florence Street, Leicester, LE2 — £190,000 • 4 bed • 1 bath • 733 ft²
5 bedroom end of terrace house for sale in Landseer Road, Clarendon Park, Leicester, LE2 — £375,000 • 5 bed • 2 bath • 1216 ft²
2 bedroom terraced house for sale in Henton Road, Leicester, LE3 — £164,950 • 2 bed • 1 bath • 743 ft²
4 bedroom terraced house for sale in Tennyson Street, Highfields, Leicester, LE2 — £270,000 • 4 bed • 1 bath • 1379 ft²
4 bedroom terraced house for sale in Norman Street, Off Narborough Road, LE3 — £285,000 • 4 bed • 2 bath • 757 ft²
4 bedroom end of terrace house for sale in Landseer Road, Clarendon Park, Leicester, LE2 — £300,000 • 4 bed • 2 bath • 1098 ft²














































































