Private garden, quick commute and great local schools for first-time buyers.
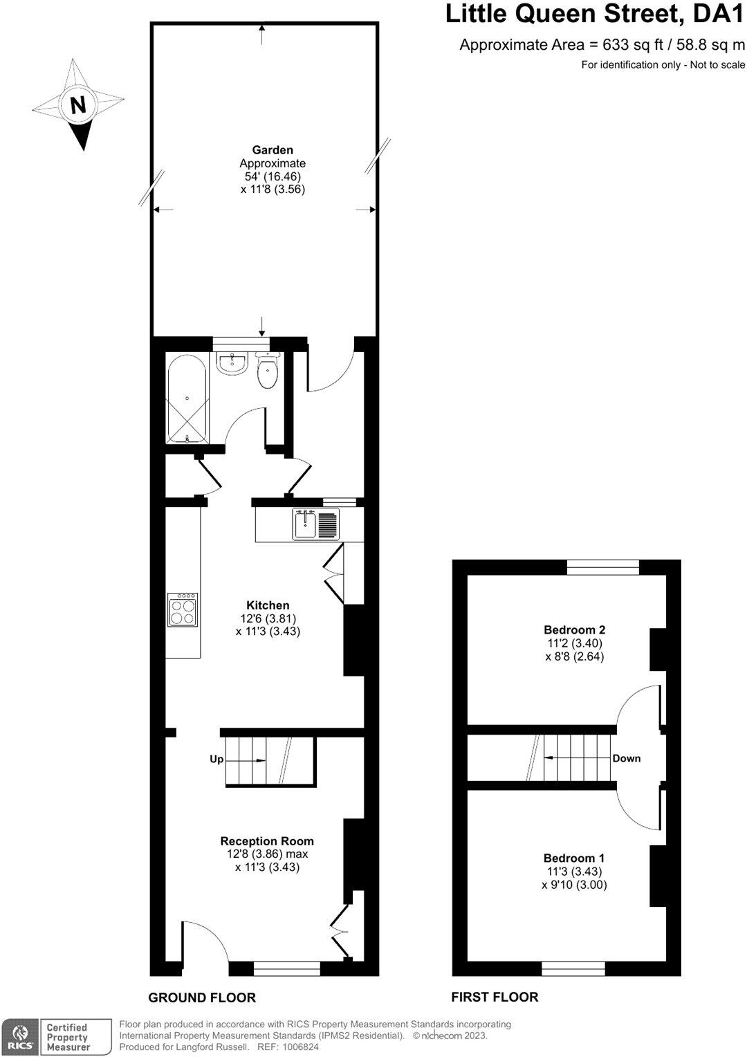
Freehold two-bedroom mid-terrace, 633 sq ft
Guide price £275,000–£300,000. This freehold mid-terrace house dates from the early 20th century and offers an economical two-bedroom layout across 633 sq ft. It benefits from a private rear garden, bright living space and a modern bathroom, making it well suited to first-time buyers or small households seeking an affordable starter home close to transport and local amenities.
The property is double-glazed and fitted with modern kitchen appliances, plus useful built-in storage throughout. Local schools are strong, and transport links into Dartford and beyond are excellent, supporting an easy daily commute and convenient shopping options nearby.
There are a few practical points to note: heating is by electric room heaters rather than central heating, walls are solid brick with assumed no cavity insulation, and the plot is small. Crime levels in the area are above average, so buyers should consider security measures. Overall, the house offers good potential but may need investment in heating, insulation and ongoing maintenance to improve comfort and running costs.
This home has sensible scope for improvement — upgrading heating and wall insulation would reduce bills and raise comfort, while garden landscaping could add outdoor appeal. For buyers wanting a reasonably priced freehold in a well-connected part of DA1, this property is a straightforward, adaptable option.
2 bedroom end of terrace house for sale in Chatsworth Road, Dartford, DA1 — £325,000 • 2 bed • 1 bath • 474 ft²
3 bedroom terraced house for sale in Willow Road, Dartford, Kent, DA1 — £350,000 • 3 bed • 1 bath • 749 ft²
2 bedroom terraced house for sale in Lordswood Close, Dartford, Kent, DA2 — £325,000 • 2 bed • 1 bath • 737 ft²
3 bedroom terraced house for sale in Great Queen Street, Dartford, Kent, DA1 — £375,000 • 3 bed • 1 bath • 1022 ft²
2 bedroom terraced house for sale in New Road, South Darenth, Dartford, Kent, DA4 — £270,000 • 2 bed • 1 bath • 420 ft²
2 bedroom end of terrace house for sale in St. Martins Road, Dartford, DA1 — £300,000 • 2 bed • 1 bath • 571 ft²






















































































