**Standout Features:**
- Prime waterside location with spectacular coastal views across Mounts Bay
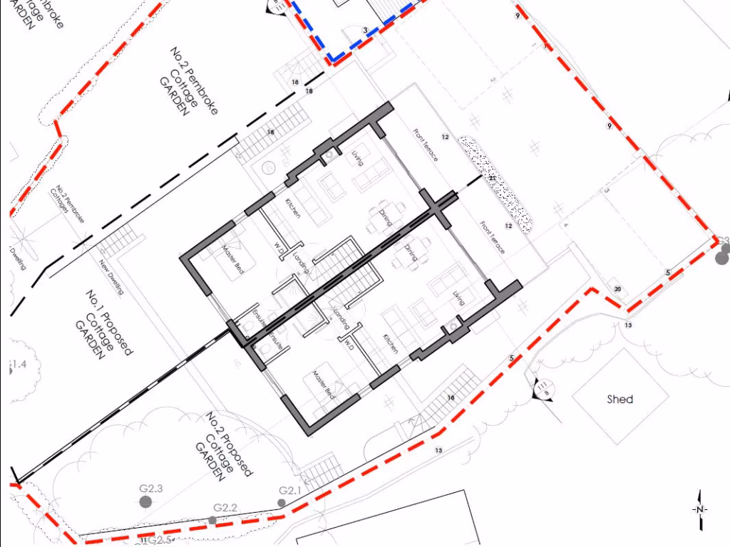
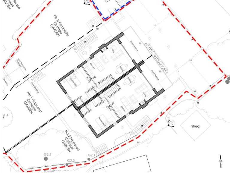
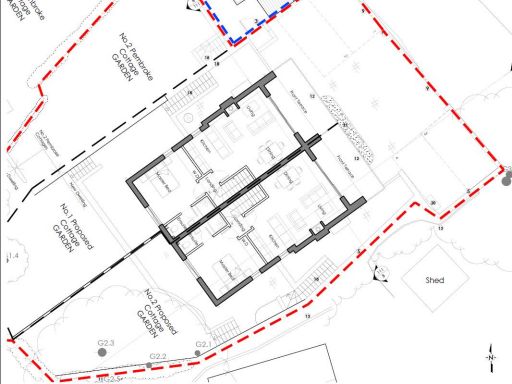
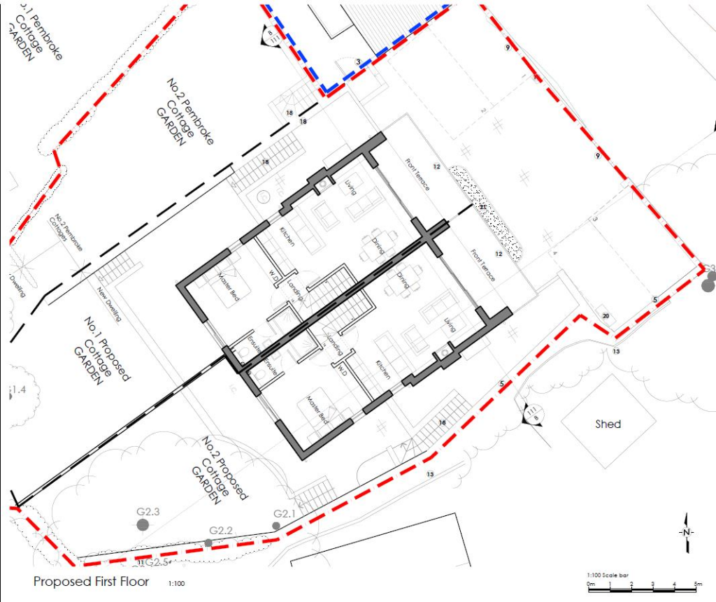
- Planning permission granted for two semi-detached 3-bedroom homes or one detached 3-bedroom property
- Private gardens and off-road parking included
- Located in the vibrant fishing village of Newlyn, rich in local amenities
- Nearby public transport connections to Penzance and Mousehole
**Concise Summary:**
Seize the rare opportunity to develop on this stunning plot of land in Newlyn, Penzance, boasting breathtaking sea views and planning permission for two semi-detached or one detached three-bedroom homes. This elevated site promises a tranquil lifestyle, with a picturesque backdrop of rolling hills and coastal charm, perfect for creating luxury homes in one of Cornwall's most sought-after locations.
Imagine spending mornings immersed in the captivating landscape, set against the dynamic backdrop of the local fishing fleet and artistic community. With desirable amenities like local markets, bakeries, and galleries just moments away, you’ll be part of a vibrant seaside culture. Plus, enjoy the convenience of private off-street parking and easy access to public transport, ensuring connectivity to nearby attractions.
Take advantage of this exceptional development potential before it's gone! Whether you're an investor seeking lucrative rental prospects or a family looking to build your bespoke coastal retreat, this plot offers endless possibilities in a serene yet lively community.
Plot for sale in Gurnick Road, Newlyn, TR18 5DH, TR18 — £175,000 • 3 bed • 1 bath
Land for sale in Sennen, Penzance, Cornwall, TR19 7AD, TR19 — £310,000 • 1 bed • 1 bath
Plot for sale in Plot in desirable location, Carbis Bay, TR26 — £375,000 • 1 bed • 1 bath • 1873 ft²
Plot for sale in Creeping Lane, Newlyn TR18 — £165,000 • 6 bed • 4 bath
Plot for sale in Helston Road, Praa Sands, TR20 — £500,000 • 1 bed • 1 bath
Plot for sale in Boscaswell Village, Pendeen TR19 — £165,000 • 1 bed • 1 bath


















































