Spacious family home with large garden and flexible first-floor rooms.
Detached dormer bungalow with predominantly ground-floor living
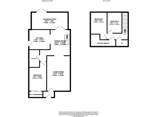
Set on Ravenspur Road in Bilton, this detached dormer bungalow offers spacious, predominantly ground-floor living tailored to family life. A large open-plan living room flows through to the dining area and kitchen, with a conservatory that benefits from underfloor heating — a bright, sociable layout for everyday life and entertaining. The master bedroom on the ground floor features a walk-in wardrobe for generous storage.
Two further first-floor bedrooms, a WC and a dedicated office provide flexible space for children, guests or working from home. Air conditioning/heating units are fitted throughout the ground floor and garage, and the main heating is mains-gas boiler and radiators (system not tested). Off-street parking to the front and a rear-access garage add practical convenience.
The garden is a sizeable, private outdoor space suitable for play and entertaining. The build dates to the 1950s–1960s and benefits from double glazing, cavity walls and an overall tidy presentation, but buyers should expect typical mid-century maintenance and consider a full survey to check services and fabric. Council Tax Band C, freehold tenure.
Located close to primary schools, local shops, a supermarket and a golf course, this home suits growing families wanting a mix of ground-floor convenience and extra upstairs rooms. Fast broadband, very low local crime and an affluent neighbourhood boost everyday comfort and resale appeal.
3 bedroom detached bungalow for sale in Main Road, Bilton, HU11 — £370,000 • 3 bed • 2 bath • 1566 ft²
3 bedroom semi-detached bungalow for sale in Main Road, Bilton, Hull, HU11 — £325,000 • 3 bed • 1 bath • 1153 ft²
4 bedroom detached house for sale in Cherry Tree Close, Bilton, Hull, HU11 — £310,000 • 4 bed • 2 bath • 920 ft²
3 bedroom detached house for sale in Cherry Tree Close, Bilton, HU11 — £256,950 • 3 bed • 1 bath • 996 ft²
2 bedroom link detached house for sale in Galfrid Road, Bilton, Hull, East Yorkshire, HU11 — £199,950 • 2 bed • 2 bath • 1067 ft²
2 bedroom semi-detached bungalow for sale in Ridsdale, Hull, HU7 — £140,000 • 2 bed • 1 bath • 519 ft²






























































