ME1 3SY - 3 bedroom end of terrace house for sale in Bell Lane, Burha…

View on Property Piper

3 bedroom end of terrace house for sale in Bell Lane, Burham, Rochester, Kent, ME1

Summary - 10 BELL LANE BURHAM ROCHESTER ME1 3SY

3 bed 1 bath End of Terrace

**Standout Features:**
- Well-presented end-of-terrace Victorian house
- Modern fitted kitchen, ideal for culinary enthusiasts
- Three bedrooms, with one conveniently accessed via another – perfect for a nursery or dressing room
- Cozy dining room with access to a sunny, secluded garden
- Average-sized rooms throughout (total 819 sq ft)
- Excellent village location with local amenities
- Strong commuter links – easy access to M2 & M20

**Summary:**
Experience comfort and charm in this immaculate Victorian end-of-terrace home nestled in the picturesque village of Burham. Boasting a modern kitchen that makes cooking a pleasure, this residence features a separate dining room perfect for entertaining, alongside a cozy lounge that offers a warm welcoming atmosphere. With three bedrooms – including a versatile third room that can serve as a nursery or dressing room – this home stands out for its practical layout.

Enjoy the lush, peaceful garden and take advantage of convenient local amenities, including schools, a doctor's office, and a friendly village pub, all within walking distance. The property benefits from solid brick construction and double glazing, with a maintenance-friendly status, while being within reach of major commuter routes for added convenience.

While this home is well-kept, potential buyers should be aware of the average plot size and lack of insulation. However, the property presents exciting renovation opportunities, such as an attic conversion to enhance living space. Priced attractively at £286,950, this property is an excellent fit for families, first-time buyers, or those seeking a peaceful village lifestyle with easy access to urban centers. Don’t miss the opportunity to make it yours; homes like this don’t stay on the market for long!

Property Details

Image Descriptions

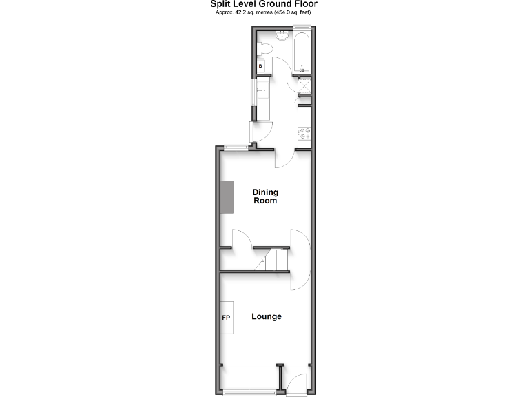
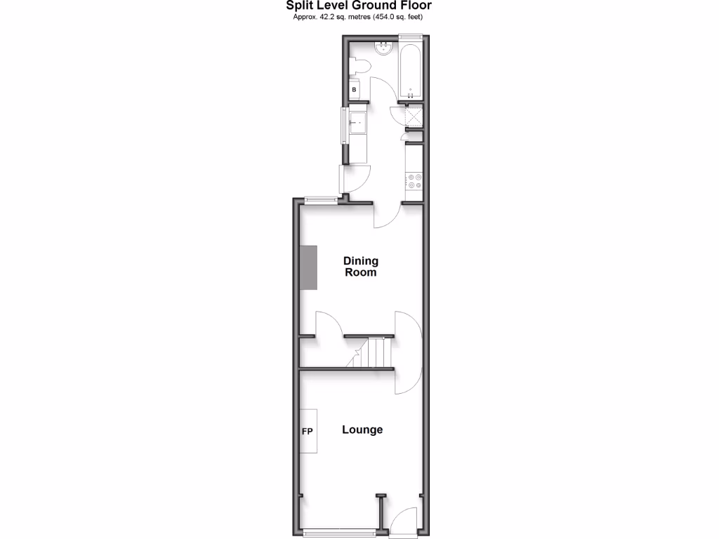
Floorplan Description

Rooms

Textual Property Features

Detected Visual Features

EPC Details

Nearby Schools

Nearest Bars And Restaurants

,,,,}

Nearest General Shops

,,}

Nearest Grocery shops

,,}

Nearest Supermarkets

,,}

Nearest Religious buildings

,,}

Nearest Medical buildings

,,,}

Nearest Airports

,}

Nearest Leisure Facilities

,,,,}

Nearest Tourist attractions

,,}

Nearest Train stations

,,,,}

Nearest Bus stations and stops

,,,,}

Nearest Hotels

,,}

Tags

Local Market Stats

Similar Properties

Meta

High Res Images

Compatible Images

Low res Images

Thumbnails

Raw Images

High Res Floorplan Images

Compatible Floorplan Images

Low res Floorplan Images

FloorplanImages Thumbnail

Raw Floorplan Images