Two-bedroom detached home with large plot and clear extension or development potential..
Detached mid-20th-century house on c.0.271 acre plot
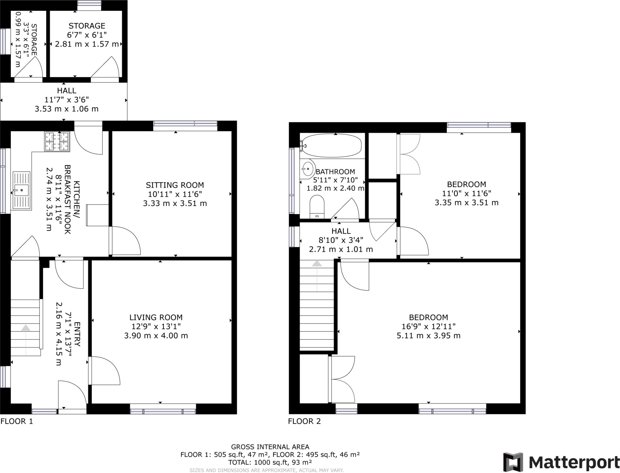
A mid-20th-century detached house on a generous c.0.271 acre plot in peaceful Hinton Waldrist, offered at a guided price of £450,000. The property provides a sociable ground-floor kitchen, a living room, two first-floor bedrooms (converted from three) and a single bathroom. An expansive private driveway and mature gardens give immediate outdoor space and privacy.
This is a straightforward renovation project with clear potential: the plot and house layout lend themselves to extension or to adding a further dwelling subject to planning. The location is a strong draw — a rare unspoilt village setting with easy access to Oxford (c.10.5 miles), Abingdon (c.9.9 miles) and Didcot Parkway (c.14.7 miles).
Buyers should note material considerations: the house needs renovation, heating is oil-fired with a boiler and radiators, and no planning permissions are currently granted. The property footprint is c.1,000 sq ft, tenure freehold, and there is low local crime and fast broadband, making it suitable for countryside workers, families or investors seeking development potential.
Local amenities include village facilities, a nearby Co-op, community centre and fine walking countryside. Good and outstanding primary schools are within reasonable distance, supporting family use, while the large plot and driveway appeal to buyers looking for scope to improve or extend.
4 bedroom detached house for sale in Hinton Road, Hinton Waldrist, Faringdon, SN7 — £865,000 • 4 bed • 2 bath • 2132 ft²
4 bedroom semi-detached house for sale in Laggots Close, Hinton Waldrist, Faringdon, Oxfordshire, SN7 — £400,000 • 4 bed • 2 bath • 1172 ft²
3 bedroom semi-detached house for sale in Priors Lane, Hinton Waldrist, Faringdon, Oxfordshire, SN7 — £600,000 • 3 bed • 2 bath • 1413 ft²
4 bedroom detached house for sale in Great Coxwell, Faringdon, Faringdon, SN7 — £450,000 • 4 bed • 1 bath • 1878 ft²
2 bedroom end of terrace house for sale in Hinton Waldrist, Faringdon, Oxfordshire, SN7 — £450,000 • 2 bed • 1 bath • 944 ft²
3 bedroom detached house for sale in High Street, Hinton Waldrist, Faringdon, SN7 — £850,000 • 3 bed • 2 bath • 3337 ft²














































































