LL29 9LP - 1 bedroom flat for sale in 332 Abergele Road, Old Colwyn, C…

View on Property Piper

1 bedroom flat for sale in 332 Abergele Road, Old Colwyn, Colwyn Bay, Conwy LL29 9LP, LL29

Summary - 332 Abergele Road, Old Colwyn, COLWYN BAY LL29 9LP

1 bed 1 bath Flat

**Standout Features:**
- Price: Guide price £60,000 - £70,000 (plus fees)
- Modern, freehold ground floor flat
- Central location, ideal for commuters and investments
- Proven rental income history as serviced accommodation
- Private rear garden and modern finish throughout
- Excellent mobile signal and fast broadband

**Concise Summary:**
Discover an exceptional opportunity with this modern ground floor flat, centrally located for convenience and accessibility. Priced between £60,000 and £70,000, this freehold property is perfect for both first-time buyers and investors seeking rental potential. Recent successful short-term rental history showcases an impressive income stream, with projections suggesting upwards of £2,180 for August alone.

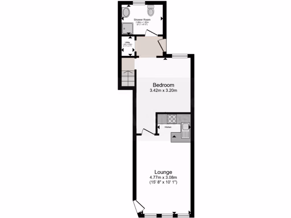
The flat features a contemporary open plan lounge/kitchen and a cozy bedroom, along with a utility area and shower room. Enjoy a private garden space and electric underfloor heating throughout for a touch of comfort. Despite its small footprint of 336 square feet, the property stands out with its modern design and minimal maintenance.

While the property does require some minor updates, its charm and potential ensure it won't last long. Act quickly to secure this great investment; register today to bid in the online auction starting September 1st and closing September 2nd!

Property Details

Image Descriptions

Floorplan Description

Rooms

Textual Property Features

Detected Visual Features

EPC Details

Nearest Bars And Restaurants

,,,,}

Nearest General Shops

,,}

Nearest Grocery shops

,,}

Nearest Supermarkets

,,}

Nearest Religious buildings

,,}

Nearest Medical buildings

,,,}

Nearest Leisure Facilities

,,,,}

Nearest Tourist attractions

,,}

Nearest Train stations

,,,,}

Nearest Bus stations and stops

,,,,}

Nearest Hotels

,,}

Tags

Local Market Stats

AirBnB Data

Similar Properties

Meta

High Res Images

Compatible Images

Low res Images

Thumbnails

Raw Images

High Res Floorplan Images

Compatible Floorplan Images

Low res Floorplan Images

FloorplanImages Thumbnail

Raw Floorplan Images