FK10 2RH - 4 bedroom cottage for sale in Delph Road, Tullibody, FK10

View on Property Piper

4 bedroom cottage for sale in Delph Road, Tullibody, FK10

Summary - 17, DELPH ROAD FK10 2RH

4 bed 3 bath Cottage

**Standout Features:**
- Deceptively spacious link-detached cottage
- High-standard decor throughout
- Bright lounge and cozy family room/snug
- Open-plan kitchen/diner, ideal for family gatherings
- Principal bedroom with en-suite bathroom
- Three additional double bedrooms and a family bathroom
- Extensive rear garden with summerhouse
- Side driveway for off-street parking

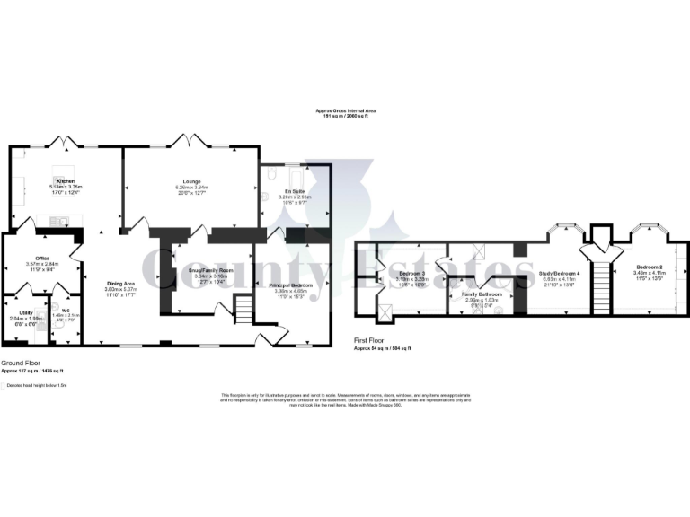
This beautifully extended link-detached cottage in Tullibody offers a harmonious blend of modern living and family comfort, presenting a rare opportunity for buyers seeking space and versatility. The property boasts four generously sized bedrooms, including a principal suite with an en-suite bathroom, and multiple living areas that cater to both relaxation and entertainment. The open-plan kitchen/diner is a standout feature, perfect for family meals and gatherings, while the bright lounge and snug provide cozy spaces to unwind.

The stunning, secluded rear garden is a highlight, with a summerhouse and multiple seating areas that invite outdoor leisure and entertaining in a tranquil setting. The side driveway provides convenient off-street parking, enhancing the home's practicality. With a total of 2060 square feet, this freehold property is designed for comfortable family living.

While the nearby area presents challenges, the strong local amenities—including schools, shops, and recreational facilities—ensure you have everything you need close at hand. This property is ideal for families or investors looking for rental potential given its spacious layout and desirable features. Don’t miss out on this exclusive listing; schedule your viewing before the closing date on Friday, July 25th at 2 PM!

Property Details

Brochure Descriptions

Image Descriptions

Floorplan Description

Rooms

Textual Property Features

Detected Visual Features

Nearest Bars And Restaurants

,,,,}

Nearest General Shops

,,}

Nearest Grocery shops

,,}

Nearest Supermarkets

,,}

Nearest Religious buildings

,,}

Nearest Medical buildings

,,,}

Nearest Airports

}

Nearest Leisure Facilities

,,,,}

Nearest Tourist attractions

,,}

Nearest Train stations

,,,,}

Nearest Bus stations and stops

,,,,}

Nearest Hotels

,,}

Tags

Local Market Stats

Similar Properties

Meta

High Res Images

Compatible Images

Low res Images

Thumbnails

Raw Images

High Res Floorplan Images

Compatible Floorplan Images

Low res Floorplan Images

FloorplanImages Thumbnail

Raw Floorplan Images