Four-bedroom family home with double garage and excellent commuter links.
South-facing large rear garden with generous paved terrace
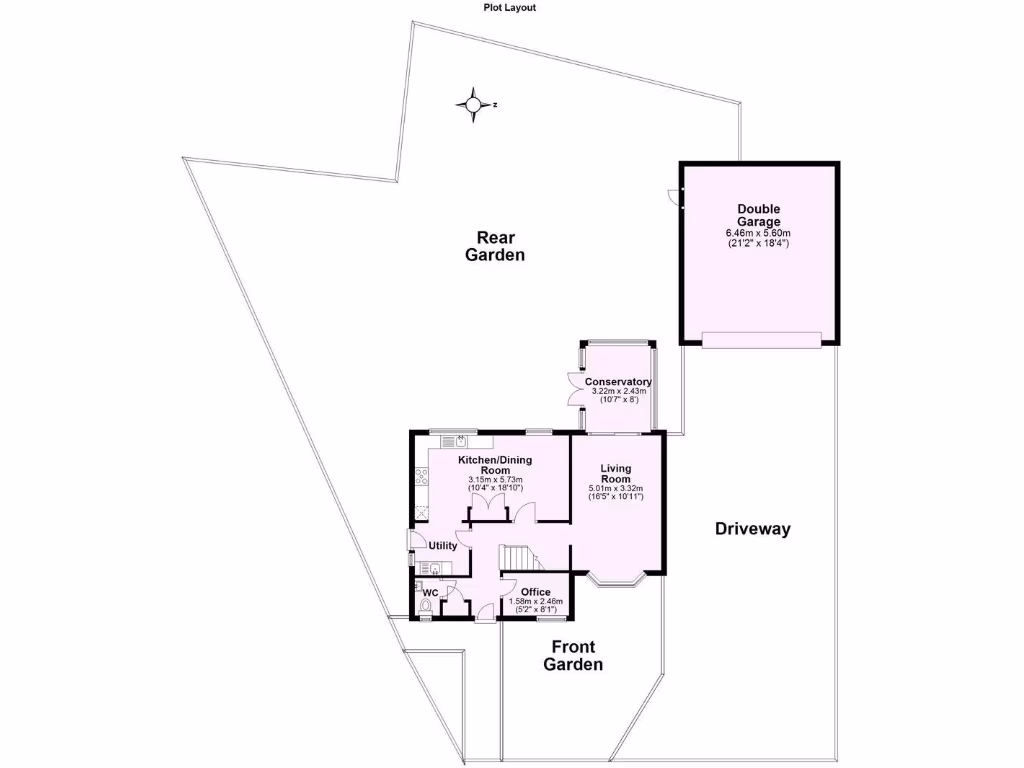
Set on a generous plot in a quiet Clifton Moor cul-de-sac, this modern four-bedroom detached home offers well-proportioned family accommodation and a large south-facing garden. The principal reception flows through to a conservatory, while an 18ft dining kitchen with adjoining utility area complements a separate study and ground-floor cloakroom. The master bedroom benefits from an ensuite and three further bedrooms share a contemporary family bathroom.
Outside, a wide paved terrace and predominantly lawned garden provide private outdoor space for family life and entertaining. Parking is practical with a shared driveway leading to a detached double garage. Built in the late 1990s and fitted with double glazing and gas central heating, the house is presented in good decorative order and ready for immediate occupation.
Practical points to note: the property is in a very affluent area but records above-average local crime and an above-average council tax band, which may affect running costs and insurance. The driveway access is shared, so prospective buyers should check arrangements for maintenance and use. Its proximity to the outer ring road and Clifton Moor retail park makes commuting and shopping straightforward.
This home will suit families seeking space, outdoor living and convenient transport links into York. It also offers potential to personalise or extend subject to consents, given the substantial plot and flexible layout.
4 bedroom detached house for sale in Headley Close, Clifton, York, YO30 — £485,000 • 4 bed • 2 bath • 1340 ft²
3 bedroom detached house for sale in Lundy Close, York, YO30 — £375,000 • 3 bed • 2 bath • 1020 ft²
4 bedroom detached house for sale in Marten Close, York, North Yorkshire, YO30 — £375,000 • 4 bed • 2 bath • 1081 ft²
4 bedroom detached house for sale in Pentire Close, York, YO30 — £500,000 • 4 bed • 2 bath • 2215 ft²
4 bedroom detached house for sale in Thresher Court, York, YO30 — £475,000 • 4 bed • 2 bath • 1420 ft²
4 bedroom detached house for sale in Pentire Close, York, YO30 — £475,000 • 4 bed • 3 bath • 1376 ft²


































































































