Compact city-base with modern kitchen and quick Nottingham access.
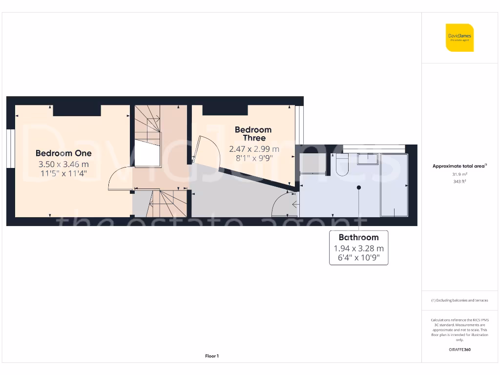
Freehold Victorian mid-terrace arranged over three floors
This three-bedroom Victorian mid-terrace offers sensible city living across three floors with efficient heating and a modern kitchen. The deceptively practical layout includes a private top-floor bedroom, a second reception room and a usable basement providing valuable storage or utility potential.
Ideal for first-time buyers or buy-to-let investors, the property is a freehold with an EPC rating of C and mains gas heating. The low-maintenance paved courtyard is easy to manage, and the house sits within a short walk of shops, schools and frequent transport links into Nottingham city centre.
Buyers should note the limited outdoor space, narrow street frontage and likely restricted on-street parking. The solid-brick construction appears sound but is assumed to lack cavity wall insulation; external joinery and internal decoration would benefit from updating in places. The local area has pockets of high deprivation, which may affect longer-term rental demand or resale considerations.
Overall, this compact period home suits purchasers seeking an affordable, city-centre-entry property with immediate rental or practical living potential, and who are prepared for modest cosmetic and thermal-improvement work.
3 bedroom town house for sale in Westwood Road, Nottingham, NG2 — £140,000 • 3 bed • 1 bath • 1013 ft²
3 bedroom terraced house for sale in Bleasby Street, Sneinton, Nottinghamshire, NG2 4FR, NG2 — £170,000 • 3 bed • 1 bath • 959 ft²
3 bedroom terraced house for sale in Ellis Grove, Beeston, Nottingham, NG9 — £235,000 • 3 bed • 1 bath • 851 ft²
2 bedroom terraced house for sale in Mafeking Street, Sneinton, Nottinghamshire, NG2 4AW, NG2 — £150,000 • 2 bed • 2 bath • 586 ft²
3 bedroom terraced house for sale in Kentwood Road, Sneinton, Nottinghamshire, NG2 4FL, NG2 — £165,000 • 3 bed • 1 bath • 717 ft²
1 bedroom terraced house for sale in Finsbury Avenue, Sneinton, NG2 — £190,000 • 1 bed • 1 bath • 593 ft²






































































