B11 1NP - 4 bedroom terraced house for sale in Walford Road, Birmingh…

View on Property Piper

4 bedroom terraced house for sale in Walford Road, Birmingham, B11

Summary - Walford Road, Birmingham B11 1NP

4 bed 1 bath Terraced

Newly renovated four-bed terrace with loft potential in a well-connected city location.
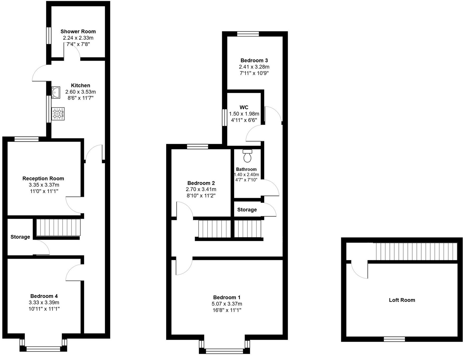
Four bedrooms plus loft space with conversion potential
Two reception rooms and newly modernised kitchen
Ground-floor wet room plus first-floor bathroom
Double glazed throughout; gas central heating, EPC C
Small rear garden with patio and lawn
Compact overall size and room footprints
High local crime rates; area classed as very deprived
Tenure recorded as unknown — verify with solicitor
This four-bedroom Victorian terrace on Walford Road has been newly renovated and offers spacious, flexible family accommodation across multiple floors. Two reception rooms, a modern kitchen and a ground-floor wet room give practical everyday living, while a bay-fronted master bedroom and additional bedrooms provide room for a growing family. A loft accessed by fixed staircase adds conversion potential or useful storage.

The property benefits from double glazing, gas central heating and an EPC rating of C, helping with comfort and running costs. A small rear garden with patio and lawn provides outdoor space for children or pets. Local amenities, schools and frequent transport links on Stratford and Ladypool Roads are all within easy reach of the doorstep.

Important considerations: the house sits in a very deprived area with higher-than-average local crime rates, and the overall plot and internal room sizes are compact. Construction is an older solid-brick form with assumed lack of cavity insulation — buyers should budget for any energy-efficiency upgrades. Tenure details are listed as unknown in the summary and should be legally verified before exchange.

This home will suit families seeking immediate move-in accommodation with scope to personalise upstairs or loft space, and investors looking for a city-centre rental in a well-connected location. Surveys are recommended to confirm structural, services and tenure particulars before purchase.

Property Details

Image Descriptions

Rooms

Textual Property Features

Target Audience

AI Tags

Detected Visual Features

EPC Details

Nearby Schools

Nearest Bars And Restaurants

,,,,}

Nearest General Shops

,,}

Nearest Grocery shops

,,}

Nearest Supermarkets

,,}

Nearest Religious buildings

,,}

Nearest Medical buildings

,,,}

Nearest Airports

}

Nearest Leisure Facilities

,,,,}

Nearest Tourist attractions

,,}

Nearest Train stations

,,,,}

Nearest Bus stations and stops

,,,,}

Nearest Hotels

,,}

Tags

Local Market Stats

AirBnB Data

Similar Properties

Meta

High Res Images

Compatible Images

Low res Images

Thumbnails

Raw Images

High Res Floorplan Images

Compatible Floorplan Images

Low res Floorplan Images

FloorplanImages Thumbnail

Raw Floorplan Images