Large plot near golf and seafront, ideal for growing families.
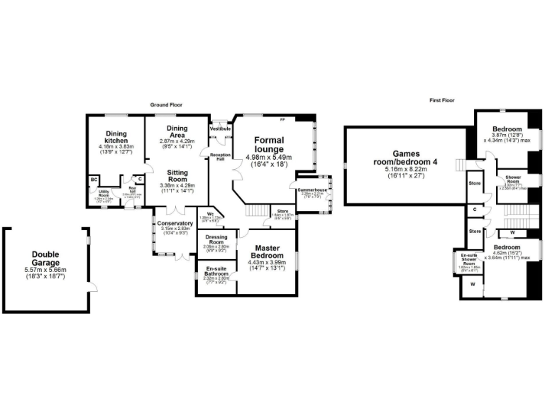
4 bedroom, 3 bathroom detached dormer house, c.2,949 sq ft
Prime coastal spot between Royal Troon and Portland golf courses
Westerly garden, patio, summerhouse; detached double garage
Large block‑paved driveway providing several off‑street parking spaces
Fitted kitchen with integrated appliances and utility room
Vaillant gas central heating, double glazing, alarm system fitted
Area data flags very high deprivation; investigate local services
No interior images provided — viewing required to assess condition
This spacious detached dormer-style family home occupies a large, well-sited plot between Royal Troon and The Portland course, a short walk from the seafront. With almost 3,000 sq ft of accommodation across ground and first floors, the property provides generous reception rooms, a fitted dining kitchen, conservatory and a master suite with dressing room and en‑suite. Practical features include double glazing, gas central heating with a Vaillant boiler, alarm system and plentiful built-in storage.
Externally there is a wide block‑paved driveway, detached double garage with automatic door, and a westerly lawned garden with patio and summerhouse. The location is a clear strength for families who value proximity to golf, beach and coastal scenery, while good road and rail links serve Ayr and Glasgow.
Notable points to consider: the wider area data flags very high deprivation despite the property’s affluent, coastal setting — buyers should check local services and planning context. Images provided were agent branding only, so an internal inspection is essential to confirm condition and finishes. Broadband is reported fast; mobile signal is average and there is no flooding risk.
This home will suit growing families seeking space and coastal lifestyle, or purchasers wanting a spacious house with potential to personalise. It is offered freehold and presented with neutral decoration, but buyers should budget for any desired modernisation after viewing.
4 bedroom detached house for sale in 6 Crosbie Place, Troon, KA10 6EY, KA10 — £595,000 • 4 bed • 2 bath • 2540 ft²
3 bedroom detached bungalow for sale in The Cottage, 23 Crosbie Road, Troon, KA10 6HE, KA10 — £375,000 • 3 bed • 2 bath • 1453 ft²
3 bedroom detached house for sale in Reedloch Drive, Troon, KA10 — £270,000 • 3 bed • 2 bath • 845 ft²
4 bedroom detached house for sale in Clark Lane, Troon, Ayrshire, KA10 — £330,000 • 4 bed • 4 bath • 1270 ft²
4 bedroom detached house for sale in 23 Coyle Park, Troon, KA10 7LB, KA10 — £295,000 • 4 bed • 2 bath • 1087 ft²
4 bedroom detached house for sale in 34 Deveron Road, Troon, KA10 7EG, KA10 — £260,000 • 4 bed • 2 bath • 1194 ft²






































































































































































































































