**Standout Features:**
- Newly renovated Victorian ground-floor maisonette
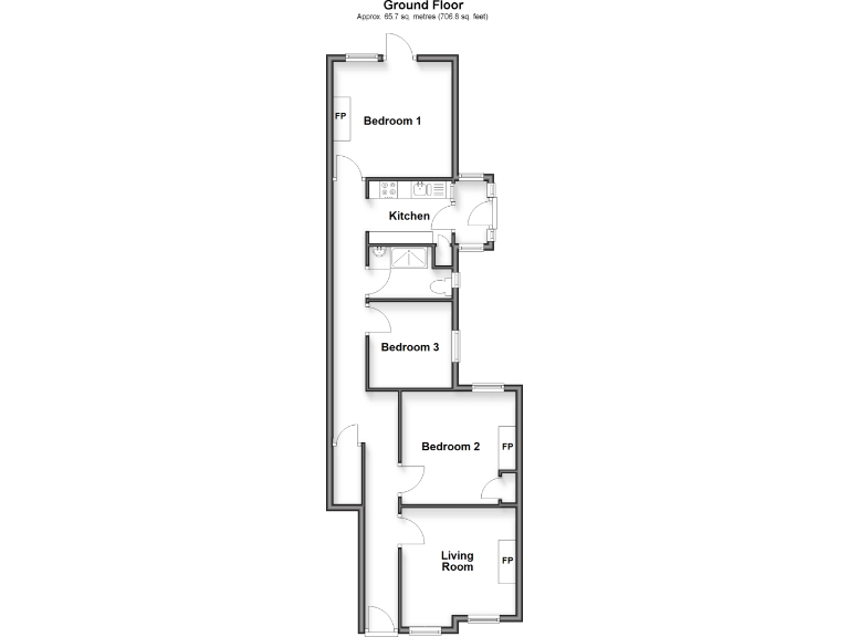
- Two/three spacious bedrooms and bright lounge
- Brand new, well-appointed fitted kitchen with ample storage
- Modern bathroom with new fittings
- Own section of a private paved rear garden
- Great transport links and proximity to Lloyd Park
- Long lease providing peace of mind
- Low council tax and nominal ground rent
Tucked away in the desirable Brettenham Road, this charming ground-floor Warner flat elegantly combines space, character, and an ideal location, making it a perfect haven for families or those who thrive on socializing. The inviting lounge flows effortlessly into a newly fitted kitchen, ideal for culinary enthusiasts or cozy family meals. With two generously sized bedrooms and a versatile third room, this residence offers flexibility that accommodates various living arrangements. The modern bathroom and private paved garden further enhance the allure, providing a serene retreat amid urban life.
The property lies just moments from the lush green expanses of Lloyd Park, placing shopping, dining, and entertainment right at your fingertips. With excellent transport links to Walthamstow Central, commuting is a breeze, making it equally appealing for city workers and those looking to enjoy the vibrant E17 lifestyle. Though compact at 711 square feet, this residence's unique charm and recent renovations offer incredible potential for comfortable living. Don't miss your chance to secure this delightful home—properties like this don't stay on the market for long!















































































