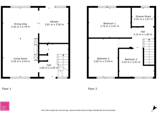
Three-bedroom mid-terrace, approx. 745 sq ft
A compact three-bedroom mid-terrace presented in largely move-in condition, suited to a first-time buyer or small family seeking affordable entry to Cowdenbeath. The ground floor offers an open-plan living and dining area flowing to a practical kitchen, while two double bedrooms plus a single room sit upstairs alongside a contemporary shower-over-bath bathroom. Double glazing and gas central heating are already in place.
Externally the enclosed rear garden is low-maintenance and includes a garden shed; on-street parking is available. The property benefits from excellent mobile signal and fast broadband, and is within walking distance of local shops, schools, bus services and Cowdenbeath rail station — handy for commuting to Dunfermline and connections across Fife.
Notable considerations: the house sits in a very deprived area and the exterior and some finishes are dated and will suit buyers comfortable with some modernisation. The home has a single bathroom and a relatively small overall footprint (approx. 745 sq ft), which may limit space for larger families. There is no private driveway and parking is on-street only.
At the asking price this freehold terrace represents an affordable route into the local market, with straightforward rental potential or scope to improve value through internal and external upgrading. Viewing is recommended to assess space and finish in person.































































































