Chain‑free, modern three‑bed with garage and sunny walled garden — ideal for busy families..
Chain free freehold sale ready to move into
Recently renovated with new decoration and carpets
Compact footprint — approx. 629 sq ft (small overall size)
Sunny, low‑maintenance walled rear garden (small plot)
Single garage plus adjacent parking space
Main bedroom with en‑suite; family bathroom upstairs
Very low local crime; excellent mobile and fast broadband
Wider area indicators show deprivation — consider longer‑term resale
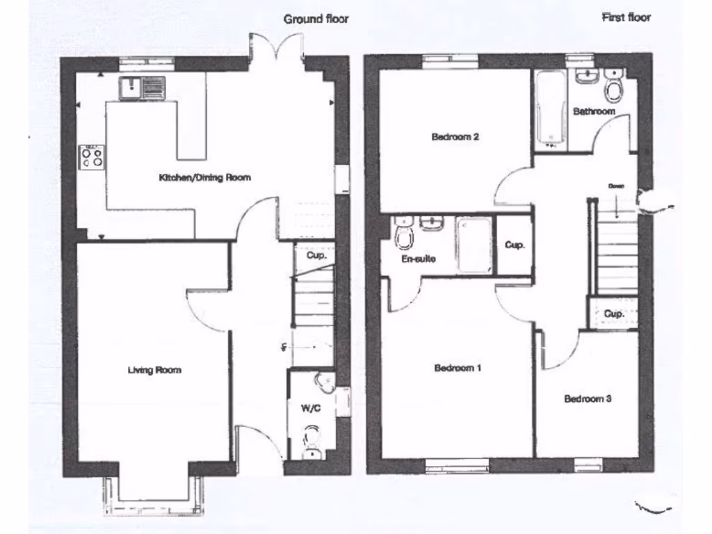
This recently renovated three-bedroom semi-detached home sits at the top of a popular development in Dawlish, a mile from the town centre, seafront and rail station. The layout is traditional and practical: reception hall, cloakroom, sitting room with a square bay, and a kitchen/diner with French doors onto the enclosed rear garden. The main bedroom benefits from an en‑suite shower; two further bedrooms and a family bathroom complete the first floor.
The property is compact (around 629 sq ft) but well presented, with new decoration, carpets, UPVC double glazing and gas central heating. Practical extras include a single garage, adjacent parking and low-maintenance walled garden with a sunny aspect. Broadband and mobile signal are strong, and local primary and secondary schools are within easy reach.
Notable positives are the chain‑free sale, freehold tenure and generally low local crime. The home offers good move‑in condition for a family seeking convenience and low up‑front maintenance. EPC C and recent refurbishments mean it’s ready to occupy without major immediate works.
Buyers should note the modest overall size and small plot: living space and bedrooms are comfortable but not generous. The wider area shows indicators of deprivation, which may affect long‑term resale dynamics despite the very low crime rate. No flood risk is reported.
3 bedroom semi-detached house for sale in Gatehouse Rise, Dawlish, Devon, EX7 — £270,000 • 3 bed • 1 bath • 1062 ft²
3 bedroom semi-detached house for sale in Clover Drive, Dawlish, Devon, EX7 — £295,000 • 3 bed • 2 bath • 941 ft²
3 bedroom semi-detached house for sale in Carnac Drive, Dawlish, Devon, EX7 — £325,000 • 3 bed • 2 bath • 811 ft²
3 bedroom semi-detached house for sale in Pidgley Road, Dawlish, EX7 — £300,000 • 3 bed • 1 bath • 683 ft²
3 bedroom semi-detached house for sale in Clover Drive, Dawlish, EX7 — £290,000 • 3 bed • 2 bath • 1018 ft²
3 bedroom semi-detached house for sale in Penfield Gardens, Dawlish, EX7 — £260,000 • 3 bed • 1 bath • 1357 ft²






































































