**Standout Features:**
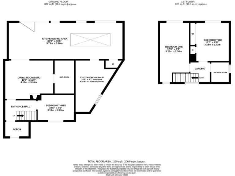
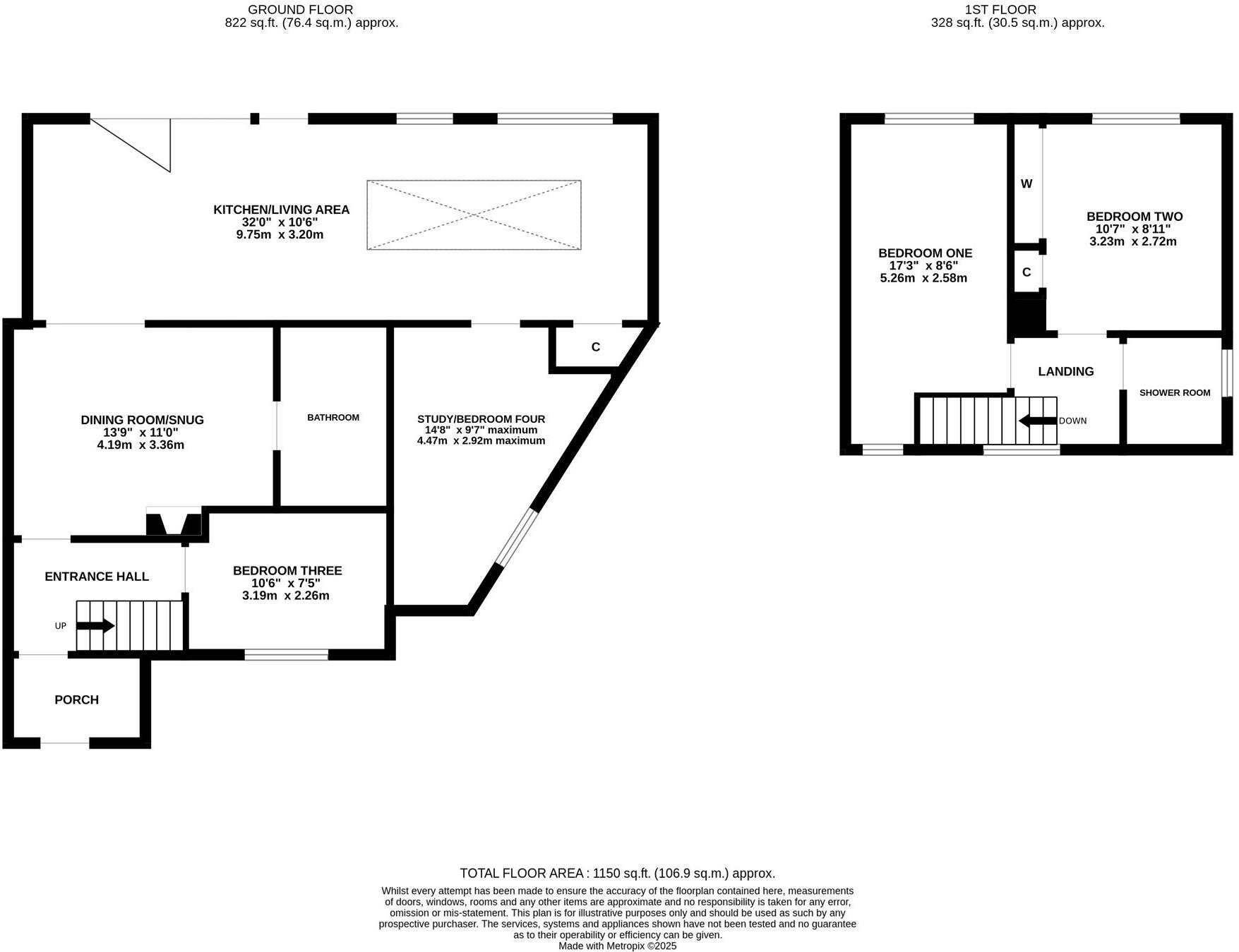
- Extended semi-detached home with up to 4 bedrooms
- Stunning open-plan kitchen/living area with skylight and garden views
- Cozy dining room/snug and ground-floor bathroom plus additional shower room
- Generous rear garden ideal for outdoor entertainment
- Convenient off-street parking
- EPC Rating: C
Located in a family-friendly neighborhood, this spacious 4-bedroom semi-detached house offers the perfect blend of comfort and style for growing families or investors. The beautifully designed open-plan kitchen/living area serves as an inviting centerpiece, complete with large glass doors that invite natural light and provide seamless access to the generous garden. Enjoy the flexibility of having both a ground-floor bathroom and an additional shower room, making it easier to accommodate family and guests.
While the property is located in a comfortable neighborhood with good primary and secondary schools nearby, it is important to note that the area has a higher crime rate, which potential buyers should consider. However, the local amenities, including parks and community centers, enhance the appeal of this home. With fast broadband and excellent mobile connectivity, this house is well-equipped for modern lifestyles. Priced at £385,000, this property offers significant value, especially given its potential for customization and future renovations. Don’t miss this opportunity to secure your ideal family home!
3 bedroom semi-detached house for sale in Langdown Road, Hythe, SO45 — £375,000 • 3 bed • 1 bath • 1033 ft²
4 bedroom semi-detached house for sale in Stonymoor Close, SO45 — £310,000 • 4 bed • 1 bath • 961 ft²
4 bedroom detached house for sale in Ashleigh Close, Hythe, SO45 — £514,500 • 4 bed • 2 bath • 946 ft²
4 bedroom detached house for sale in Armada Drive, Hythe, SO45 — £360,000 • 4 bed • 1 bath • 1216 ft²
3 bedroom semi-detached house for sale in Heatherstone Avenue, Dibden Purlieu, SO45 — £359,950 • 3 bed • 1 bath • 861 ft²
4 bedroom house for sale in Sparsholt Road, Southampton, SO19 — £299,000 • 4 bed • 1 bath • 1023 ft²






















































































