Ready-to-move, renovated semi with flexible space and station access.
No onward chain; ready to move into
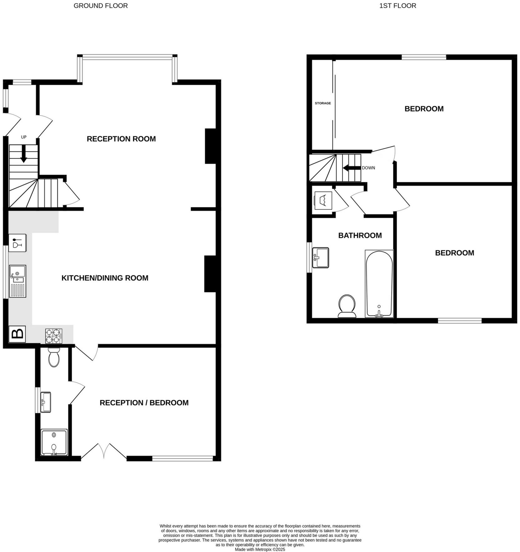
Open-plan reception and kitchen over 30ft
Two double bedrooms plus garden room/third bedroom
New kitchen, new bathrooms, and added external wall insulation
Timber-frame construction from 1940s — survey advised
Southerly landscaped rear garden; small plot
Off-street parking and fast broadband; excellent mobile signal
Cheap council tax; very low flood risk
Step inside a recently renovated semi-detached house on Albert Road, ready to move into and offered with no onward chain. The ground floor opens to a flexible, open-plan reception and kitchen area stretching over 30ft, finished with a modern kitchen and large windows that bring in light. The rear extension includes a ground-floor shower room and a garden-room that can function as a third bedroom, home office, or snug.
Upstairs are two double bedrooms and a newly fitted family bathroom. The current owners added external wall insulation and a silicone render during refurbishment to improve thermal performance, and the property benefits from mains gas central heating, double glazing and fast broadband — useful for commuters and home workers. Off-street parking and a newly landscaped southerly rear garden add practical outdoor space on a small plot.
This home suits first-time buyers or couples seeking a low-hassle purchase close to Deal town centre and the mainline station (fast trains to London). Important factual points: the house is timber-frame dated to the 1940s, so prospective buyers should note the construction type and age. Although thermal upgrades were installed, buyers may wish to survey the timber-frame and overall condition for long-term maintenance planning.
Overall this is a well-presented, versatile home in a central location — attractive for those wanting a move-in-ready property with commuting convenience and potential to adapt the layout further.
2 bedroom terraced house for sale in Albert Road, Deal, Kent, CT14 — £260,000 • 2 bed • 1 bath • 899 ft²
3 bedroom house for sale in Mill Road, Deal, CT14 — £220,000 • 3 bed • 1 bath • 936 ft²
3 bedroom semi-detached house for sale in The Grove, Deal, Kent, CT14 — £350,000 • 3 bed • 1 bath • 937 ft²
3 bedroom semi-detached house for sale in Forelands Square, Deal, CT14 — £295,000 • 3 bed • 1 bath • 753 ft²
3 bedroom semi-detached house for sale in Celtic Road, Deal, CT14 — £275,000 • 3 bed • 1 bath • 704 ft²
3 bedroom semi-detached house for sale in Middle Deal Road, Deal, CT14 — £285,000 • 3 bed • 2 bath • 642 ft²






















































