Renovated, low-maintenance city family house with garage and easy central access.
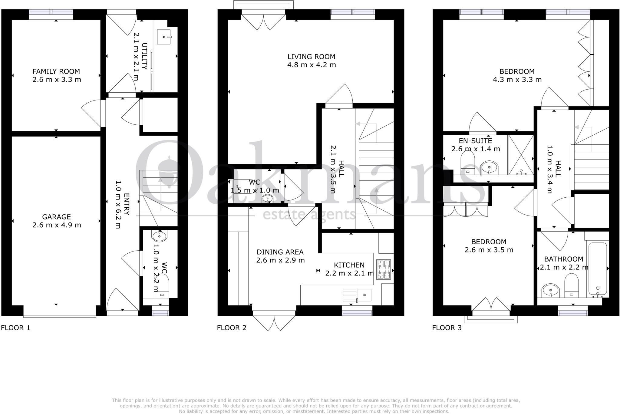
Three double bedrooms across three floors
This three-storey, three-bedroom semi-detached house offers modern, move-in ready living across well-arranged floors. Recently renovated throughout, it includes a contemporary fitted kitchen, ensuite to the principal bedroom and an integral garage with gated driveway — practical for a family needing parking close to the city.
Situated on Springmeadow Road, the home sits a short distance from Birmingham city centre amenities and transport links, with lots of local shops, eateries and services within easy walking distance. Mobile signal is excellent and the property benefits from low flood risk and standard mains services.
Buyers should note material local drawbacks: the area records high crime levels and is classified as very deprived, and broadband speeds are very slow. The plot and garden are small, so outdoor space and privacy are limited compared with larger suburban gardens. Local schools are mixed in quality — one top 10% primary, but several nearby schools are rated as ‘requires improvement’. These factors are important for families or buyers planning long-term occupation.
Overall, the house will suit a commuter family or professionals wanting a modern, low-maintenance city-base with secure parking and quick access to central Birmingham. It also offers straightforward potential for buyers to tailor interiors further, though external living space and digital connectivity would need attention.
3 bedroom end of terrace house for sale in York Road, Edgbaston, B16 — £375,000 • 3 bed • 2 bath • 1250 ft²
3 bedroom terraced house for sale in Belgravia Close, Birmingham, West Midlands, B5 — £350,000 • 3 bed • 1 bath • 1123 ft²
4 bedroom town house for sale in East Drive, Birmingham, West Midlands, B5 — £300,000 • 4 bed • 2 bath • 1107 ft²
4 bedroom end of terrace house for sale in Rowton Lane, Birmingham, B5 — £445,000 • 4 bed • 2 bath • 1120 ft²
4 bedroom terraced house for sale in Kinver Croft, Birmingham, B12 — £270,000 • 4 bed • 1 bath • 1163 ft²
3 bedroom semi-detached house for sale in Alvechurch Road, Birmingham, West Midlands, B31 — £290,000 • 3 bed • 2 bath • 953 ft²


































































































































