GL11 5FG - 4 bedroom detached house for sale in Barley Close, Cam, Dur…

View on Property Piper

4 bedroom detached house for sale in Barley Close, Cam, Dursley, GL11

Summary - Barley Close, Cam, Dursley GL11 5FG

4 bed 2 bath Detached

**Standout Features:**
- Modern detached house built in 2022
- Four spacious bedrooms and multiple living areas, including a study
- Light and airy kitchen/diner with bi-folding doors to the garden
- Private enclosed rear garden, laid to lawn and patio
- Garage, with parking for two cars in front
- Energy-efficient with an EPC rating of B85
- Chain-free and freehold property with approximately 7 years left on the NHBC warranty

**Potential Downsides:**
- Annual service charge of approximately £214.60
- Council tax band E at £2,863.53

**Summary:**
Discover this contemporary detached house in the desirable Barley Close, Cam, perfect for families or as a smart investment. Built in 2022, this property boasts 1,167 square feet of elegantly designed living space that includes four well-sized bedrooms ideal for family living or guests. The heart of the home is the stunning open-plan kitchen/dining area, which features modern appliances, a breakfast bar, and bi-folding doors that extend into the private, enclosed rear garden—perfect for entertaining or relaxing outdoors.

The home also offers a study for those needing a dedicated workspace, plus two sleek bathrooms for convenience. With off-road parking for up to two vehicles and a garage, this property blends modern comforts with functionality. Enjoy the benefits of a fast broadband connection and an EV charging point, catering to today's tech-savvy lifestyles. Situated in a peaceful community with good schools and transport links, this home presents a unique combination of comfort, quality, and potential. Don't miss this rare opportunity—properties like this won't stay on the market for long!

Property Details

Brochure Descriptions

Image Descriptions

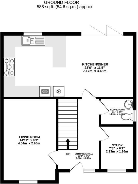
Floorplan Description

Rooms

Textual Property Features

Detected Visual Features

EPC Details

Nearby Schools

Nearest Bars And Restaurants

,,,,}

Nearest General Shops

,,}

Nearest Grocery shops

,,}

Nearest Supermarkets

,,}

Nearest Religious buildings

,,}

Nearest Medical buildings

,,,}

Nearest Leisure Facilities

,,,,}

Nearest Tourist attractions

,,}

Nearest Train stations

,,,,}

Nearest Bus stations and stops

,,,,}

Nearest Hotels

,,}

Tags

Local Market Stats

Similar Properties

Meta

High Res Images

Compatible Images

Low res Images

Thumbnails

Raw Images

High Res Floorplan Images

Compatible Floorplan Images

Low res Floorplan Images

FloorplanImages Thumbnail

Raw Floorplan Images