Two-bed freehold terrace with tenants in place — ready for refurbishment and immediate rental income..
Tenants in situ paying £750pcm providing immediate rental income
Freehold end-terrace close to town centre amenities and transport
Two double bedrooms and two reception rooms, practical layout
Small easily-maintained rear courtyard and compact front yard
Solid brick pre-1900 construction; likely no wall insulation
Dated condition; requires modernization and energy-efficiency upgrades
Very deprived area with high local crime — investment risk factor
Council tax very cheap; excellent mobile signal and fast broadband
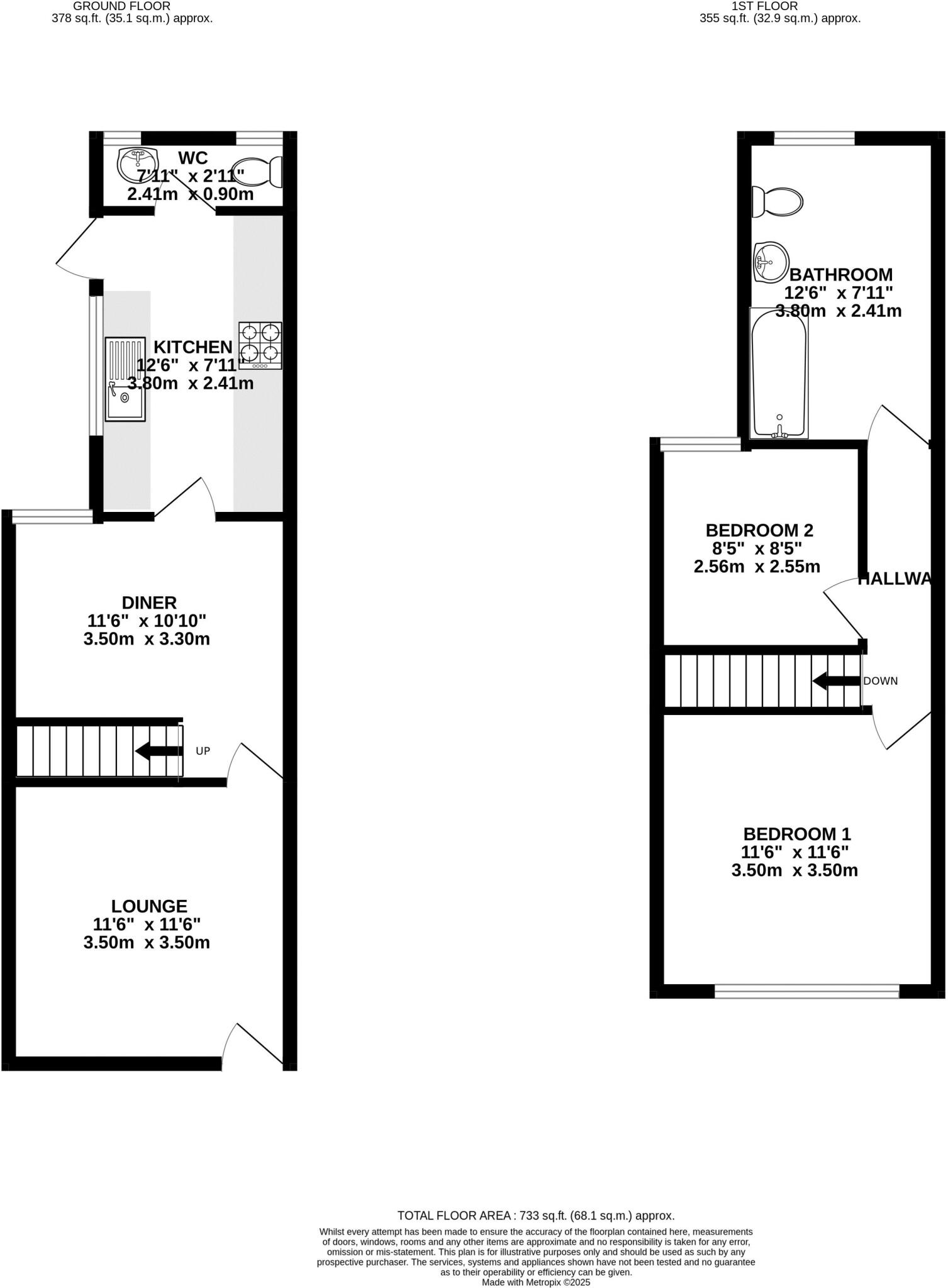
This two-bedroom terraced house on Digby Street is offered with tenants in situ paying £750pcm, presenting an immediate rental income for an investor. The property is freehold, built before 1900, and has two reception rooms, a small rear courtyard and compact front yard — a low-maintenance urban holding in the town centre.
Internally the layout is practical: two double bedrooms, bathroom with three-piece suite, ground-floor WC, and separate kitchen. The building has double glazing (installation date unknown), mains gas boiler and radiators. The property is solid brick with assumed no wall insulation and will benefit from modernisation and energy-efficiency upgrades.
Key positives are the town-centre location, tenants already in place, excellent mobile signal and fast broadband — practical for lettings. Material drawbacks include a very deprived local area with high crime levels, small plot size, dated exterior and interiors, and likely retrofit costs to improve thermal performance.
This is a straightforward entry-level investment or a project for someone prepared to carry out cosmetic and energy-improvement works. It will suit buyers seeking immediate rental income and long-term capital growth from refurbishment rather than a turnkey family home.
3 bedroom terraced house for sale in Digby Street, SCUNTHORPE, DN15 — £110,000 • 3 bed • 1 bath • 813 ft²
2 bedroom terraced house for sale in Redbourne Street, Scunthorpe, DN16 — £72,000 • 2 bed • 1 bath • 905 ft²
2 bedroom property for sale in Detuyll Street, Scunthorpe, DN15 — £60,000 • 2 bed • 2 bath • 539 ft²
2 bedroom terraced house for sale in Redbourne Street, Scunthorpe, DN16 — £69,950 • 2 bed • 1 bath • 578 ft²
3 bedroom terraced house for sale in Earl Street, Scunthorpe, DN16 — £82,500 • 3 bed • 1 bath • 857 ft²
2 bedroom terraced house for sale in Redbourne Street, Scunthorpe, DN16 — £59,950 • 2 bed • 1 bath • 631 ft²






































