PA13 4AY - 3 bedroom house for sale in Kohala House, Duchal Road, Kilm…

View on Property Piper

3 bedroom house for sale in Kohala House, Duchal Road, Kilmacolm, Inverclyde, PA13

Summary - KOHALA, DUCHAL ROAD, KILMACOLM PA13 4AY

3 bed 2 bath House

**Key Features:**
- Historic Edwardian and Arts and Crafts style design
- Generously sized detached house with 3 bedrooms and 2 bathrooms
- Beautifully landscaped gardens with year-round color and several seating areas
- High ceilings and period features including stained glass windows, original fireplaces, and detailed woodwork
- Spacious and bright interiors with a well-equipped kitchen and separate dining area
- Freehold tenure with excellent mobile signal and fast broadband availability

**Summary:**
Discover Kohala House, a stunning Edwardian period property nestled in the heart of Kilmacolm, blending historic charm with modern comfort. Built in 1906, this spacious 3-bedroom home exudes character with its impressive architectural features, including high ceilings, ornate wooden beams, and leaded stained glass. The meticulously landscaped gardens provide a private oasis, perfect for families and outdoor enthusiasts alike.

Offering ample living space over two levels, the property includes a cozy sitting room with a log burner, a formal dining area, and a breakfasting kitchen, combining functionality and style. While the house is in fresh decorative order, potential buyers should be aware of the relatively high council tax band G (£3,940 per year) and ongoing maintenance costs for such a large home.

Set on a quiet, tree-lined street, Kohala House is conveniently located just a short walk from the village center, local schools, and recreational facilities, including Kilmacolm Golf Club. This unique property presents an exceptional opportunity for both families seeking comfort and investors looking for a charming residence in an affluent community. Don’t miss your chance to own this rare gem—schedule a viewing today and experience the tranquility and character that Kohala House has to offer!

Property Details

Brochure Descriptions

Image Descriptions

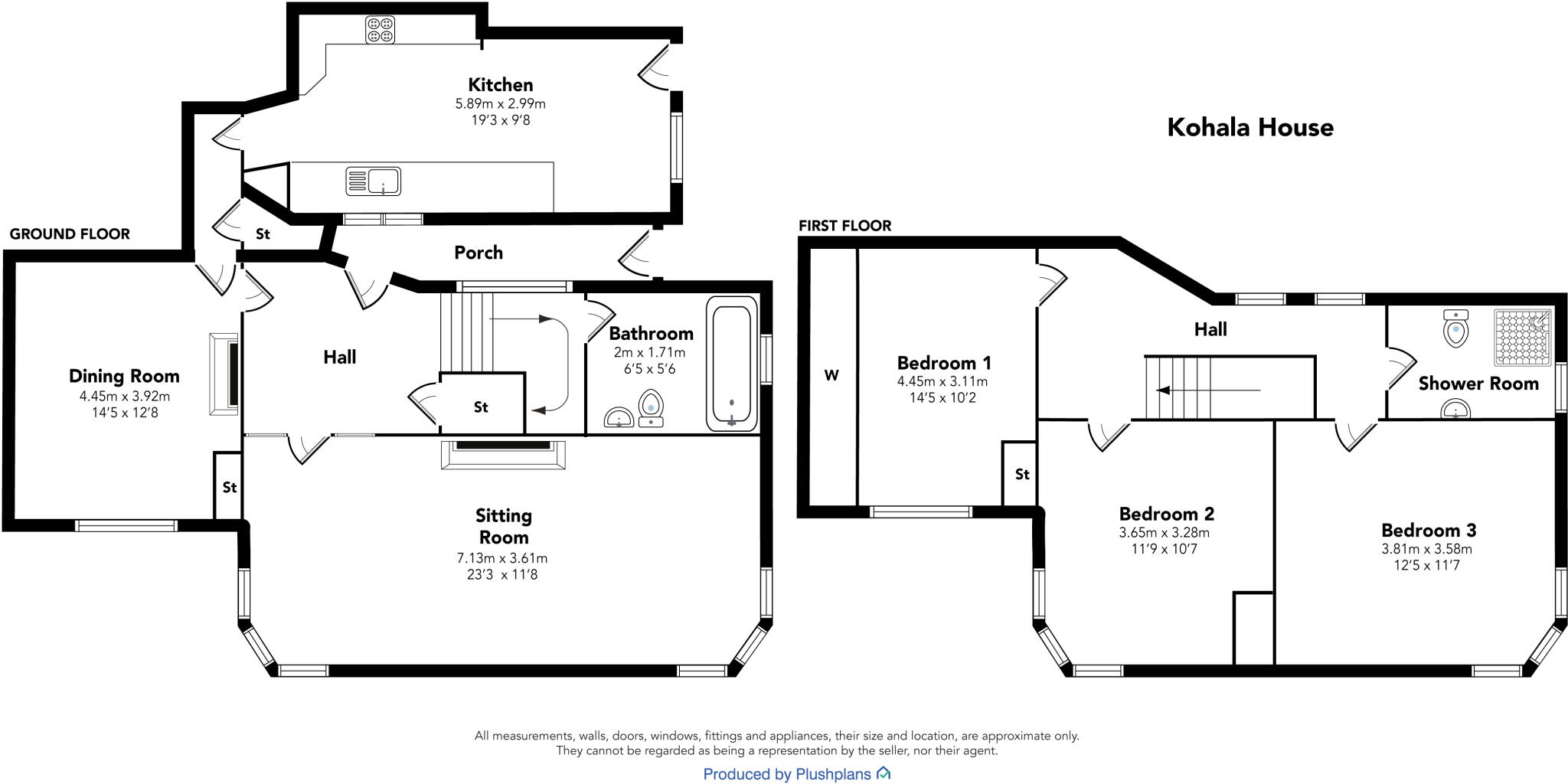
Floorplan Description

Rooms

Textual Property Features

Detected Visual Features

Nearest Bars And Restaurants

,,,,}

Nearest General Shops

,,}

Nearest Grocery shops

,,}

Nearest Supermarkets

,,}

Nearest Religious buildings

,,}

Nearest Medical buildings

,,,}

Nearest Airports

,}

Nearest Leisure Facilities

,,,,}

Nearest Tourist attractions

,,}

Nearest Train stations

,,,,}

Nearest Bus stations and stops

,,,,}

Nearest Hotels

,,}

Tags

Local Market Stats

AirBnB Data

Similar Properties

Meta

High Res Images

Compatible Images

Low res Images

Thumbnails

Raw Images

High Res Floorplan Images

Compatible Floorplan Images

Low res Floorplan Images

FloorplanImages Thumbnail

Raw Floorplan Images