Low-maintenance two-bed with allocated parking and long lease.
Triple-aspect living room creates bright, sunny social space
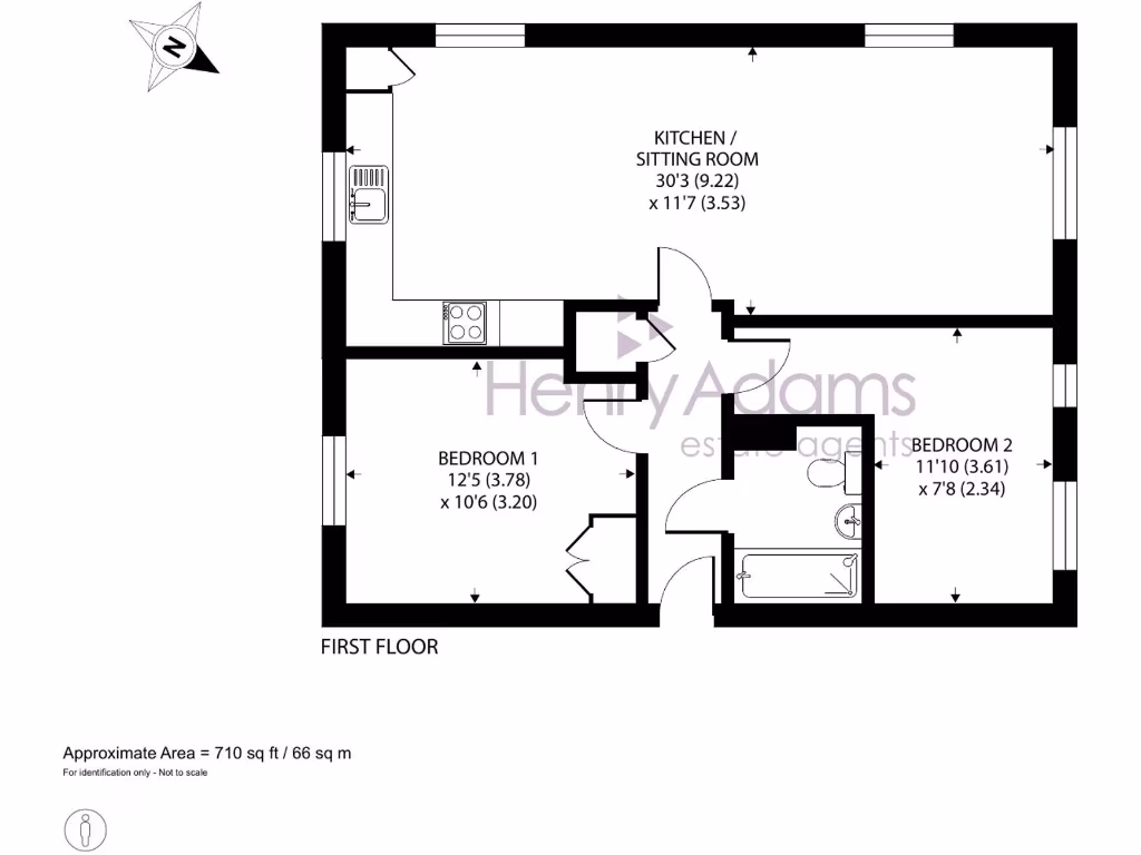
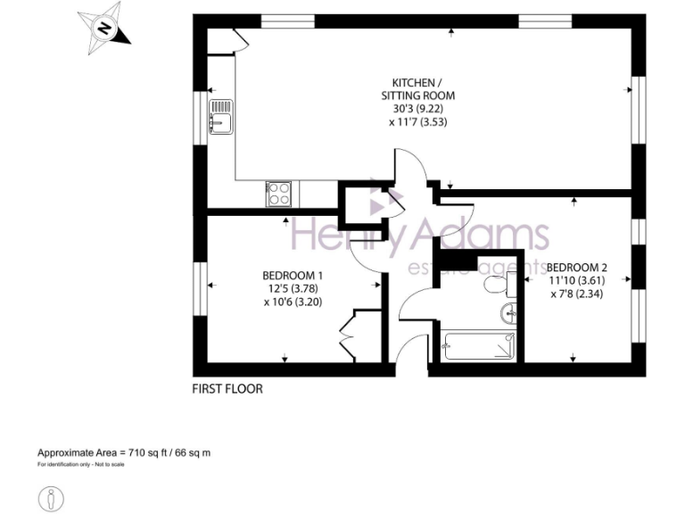
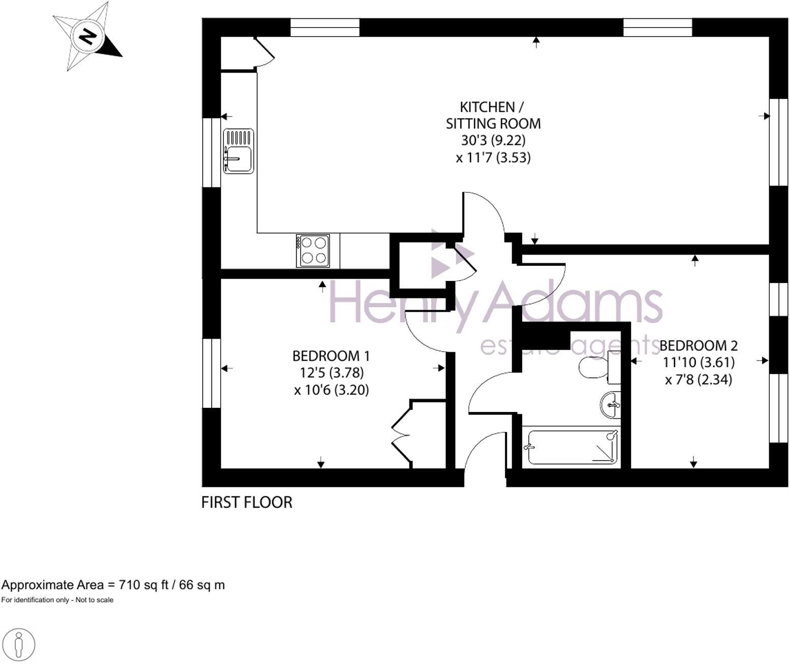
This bright first-floor apartment offers a low-maintenance, modern home in a popular village setting — an appealing step onto the property ladder. The triple-aspect living room and integrated kitchen create a sunny, sociable heart to the home with pleasant outlooks over the central greensward.
The property provides two good-sized bedrooms and a contemporary bathroom with shower over bath. Practical extras include an allocated off-street parking space, shared bike shed and secure entry phone system. The apartment sits in a small purpose-built block of six homes and comes to market chain free, making a straightforward move possible.
Buyers should note this is a leasehold flat: 140 years remain, with annual ground rent of £250 and a service charge around £1,550 per year (five-year average c.£1,314). Access is by communal stairs to the first floor (no lift), and the layout is average-sized at approximately 710 sq ft — comfortable but not large.
With an EPC B rating, mains gas central heating and fast broadband, the property suits first-time buyers or couples seeking a comfortable, low-maintenance home close to local schools and transport links. The setting beside the greensward delivers a peaceful outlook while remaining within easy reach of Chichester and the A27.
2 bedroom flat for sale in Churchwood Drive, Tangmere, Chichester, PO20 — £190,000 • 2 bed • 1 bath • 594 ft²
3 bedroom flat for sale in Longacres Way, CHICHESTER, West Sussex, PO20 — £275,000 • 3 bed • 1 bath • 1063 ft²
2 bedroom flat for sale in Waterfield Gardens, Chichester, PO19 — £230,000 • 2 bed • 1 bath • 646 ft²
2 bedroom ground floor flat for sale in The Boulevard, Chichester, West Sussex, PO20 — £250,000 • 2 bed • 2 bath • 646 ft²
2 bedroom apartment for sale in Humphrey Place, Chichester, PO19 — £290,000 • 2 bed • 2 bath • 919 ft²
2 bedroom apartment for sale in Potters Way, Bognor Regis, West Sussex, PO21 — £235,000 • 2 bed • 2 bath • 710 ft²










































































