Sunny garden and large driveway ideal for family living.
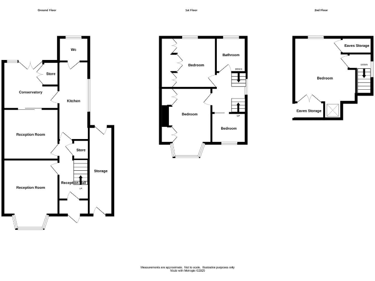
Four bedrooms including large attic room
A spacious-feeling four-bedroom semi-detached house on Hurst Green Road that suits growing families seeking outdoor space and parking. The property offers two reception rooms, a conservatory that opens to a sunny rear garden, and a generous driveway with room for several cars.
The fitted kitchen includes an oven, hob and dishwasher and there is a convenient ground-floor cloakroom. Gas central heating, PVC double glazing and mains services are already in place. Bedrooms include three on the first floor and a larger attic bedroom, providing flexible sleeping and storage arrangements.
Practical considerations: the home is compact overall (around 506 sq ft recorded), has a single main bathroom, and an EPC rating of D. Buyers should note room sizes are modest and some modernisation could increase comfort and value. Tenure is freehold and council tax band C.
Local amenities and schooling are strong: several good primary and secondary schools are within easy reach, plus shops, pubs and frequent buses. Broadband and mobile coverage are good and there is very low flood risk, making this a convenient family choice in Halesowen.
3 bedroom town house for sale in HALESOWEN, Hurst Green, B62 — £279,950 • 3 bed • 2 bath • 1018 ft²
3 bedroom semi-detached house for sale in Middlefield Avenue, Halesowen, B62 9QL, B62 — £330,000 • 3 bed • 1 bath • 1471 ft²
4 bedroom semi-detached house for sale in Middlefield Avenue, Hurst Green, Halesowen, B62 — £350,000 • 4 bed • 2 bath • 2401 ft²
3 bedroom semi-detached house for sale in Dale Road, Halesowen, B62 — £325,000 • 3 bed • 1 bath • 1185 ft²
3 bedroom detached house for sale in Woodbury Road, Halesowen, B62 — £285,000 • 3 bed • 1 bath • 829 ft²
4 bedroom semi-detached house for sale in Beecher Road East, Halesowen, B63 — £350,000 • 4 bed • 1 bath • 902 ft²


























































