Affordable three-bedroom terraced home with garden and transport links — ideal for first-time buyers willing to update.
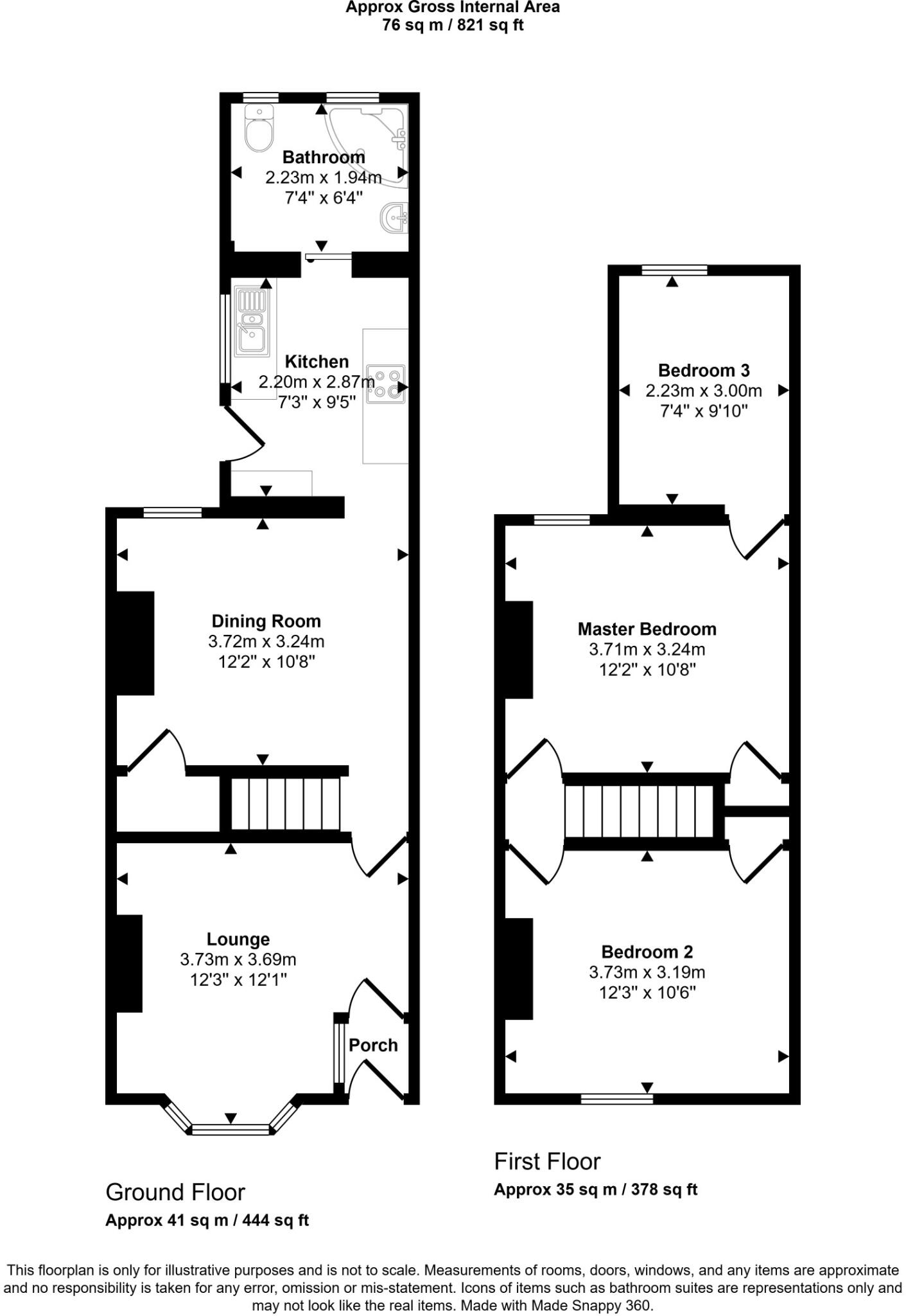
Three-bedroom terraced freehold with private rear garden
Double glazing and gas central heating throughout
Third bedroom accessed via second bedroom (limited privacy)
Dining room dated and requires modernisation
Average overall size (~821 sq ft); small plot
Fast broadband and excellent mobile signal
Close to bus routes, A2 and national rail links to London
Area classed deprived with higher local crime levels
This three-bedroom terraced home on St Johns Road offers an affordable entry into Upper Gillingham with good transport links and a private rear garden. The house is freehold, gas central heated and double glazed, with an average overall size of about 821 sq ft across multiple storeys — well suited to first-time buyers or small families seeking value and convenience.
The layout includes two reception rooms, a kitchen and bathroom on the ground floor, and three bedrooms upstairs. Note the third bedroom is accessed via the second bedroom, which affects privacy and may suit a child or home office rather than a fully independent bedroom. The dining room décor is dated and needs modernisation; the property will benefit from cosmetic updating throughout to reach its full potential.
Practical strengths include fast broadband, excellent mobile signal, cheap council tax and no flood risk. It’s close to bus routes, the A2 and mainline rail links to London, plus local shops, Medway Hospital and leisure facilities. Nearby schools include several rated Good, though a few local schools require improvement—check specific catchment details if schools are a priority.
Buyers should be aware the surrounding area is classed as deprived with higher local crime levels. The plot is small and the property is best described as average sized overall. For those willing to invest in modest refurbishment, this home presents clear scope to increase comfort and value in a convenient, well-connected location.
3 bedroom terraced house for sale in Chaucer Road, Gillingham, ME7 — £240,000 • 3 bed • 1 bath • 888 ft²
3 bedroom terraced house for sale in Milton Road, Gillingham, Kent, ME7 — £250,000 • 3 bed • 1 bath • 768 ft²
3 bedroom terraced house for sale in Priestfield Road, Gillingham, Kent, ME7 — £240,000 • 3 bed • 1 bath • 927 ft²
3 bedroom terraced house for sale in Gardiner Street, Gillingham, ME7 — £250,000 • 3 bed • 1 bath • 1034 ft²
3 bedroom end of terrace house for sale in Cobham Rise, Gillingham, Kent, ME7 — £325,000 • 3 bed • 1 bath • 813 ft²
3 bedroom terraced house for sale in King William Road, Gillingham, Kent, ME7 — £260,000 • 3 bed • 1 bath • 663 ft²






































































