Immaculately refurbished three-bed with private courtyard near Kensington amenities.
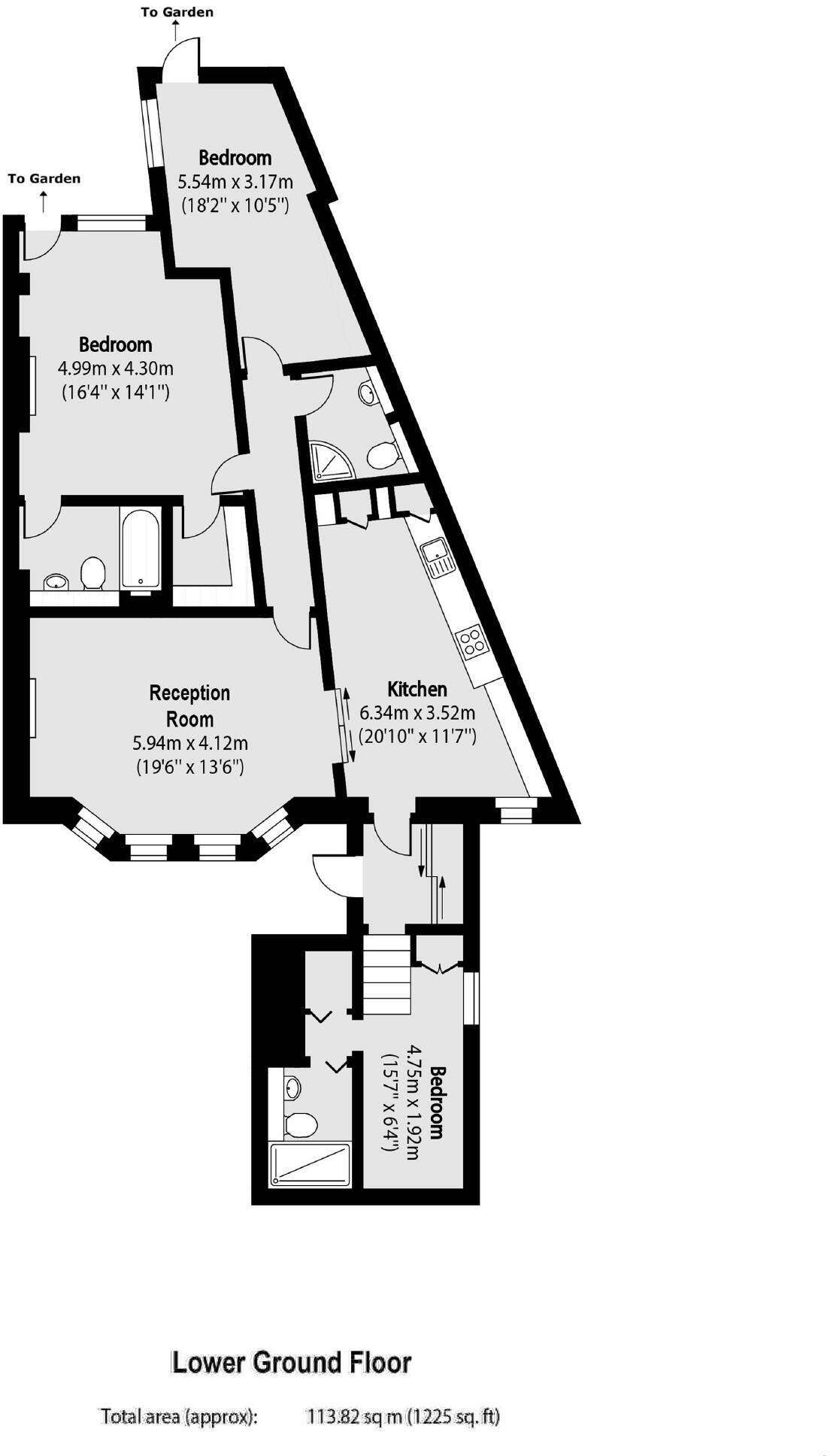
- Newly renovated three-bedroom apartment with three bathrooms
- Private courtyard providing rare outdoor space for central location
- 1,225 sq ft across multiple levels; generous ceiling heights
- Excellent natural light from large period windows
- Close to Kensington High Street, Holland Park and Tube stations
- Solid-brick Victorian building; likely no wall insulation
- Council Tax Band F — relatively expensive ongoing cost
- Local area has higher-than-average crime and signs of deprivation
Set on a quiet stretch of Cromwell Crescent, this newly renovated three-bedroom apartment blends period character with contemporary finishes. High ceilings and large sash windows flood the principal rooms with natural light, while a brand-new kitchen and three modern bathrooms deliver move-in convenience. A private courtyard provides outdoor space rare for central Earls Court.
At around 1,225 sq ft across multiple levels, the layout suits a family or professionals seeking space close to Kensington High Street and Holland Park. Excellent transport links are moments away via Earls Court and Kensington High Street stations, and local amenities — shops, supermarkets, restaurants and childcare — are within easy walking distance.
Buyers should note material practicalities: the building is a solid-brick Victorian construction likely without wall insulation, council tax is high (Band F), and local crime rates are above average. Tenure is a share of freehold. Overall, this is a bright, well-presented central London home offering period charm, contemporary bathrooms and outdoor space, with clear running-cost and retrofit considerations to budget for.
3 bedroom flat for sale in Coleherne Court, London, SW5 — £2,450,000 • 3 bed • 2 bath • 1450 ft²
2 bedroom apartment for sale in Cromwell Crescent, London, SW5 — £1,000,000 • 2 bed • 2 bath • 800 ft²
2 bedroom flat for sale in Cromwell Crescent, SW5 — £1,000,000 • 2 bed • 2 bath • 925 ft²
3 bedroom flat for sale in Broadwood Terrace, London, W8 — £775,000 • 3 bed • 1 bath • 917 ft²
3 bedroom apartment for sale in Marlborough Court, Pembroke Road, London, W8 — £1,450,000 • 3 bed • 1 bath • 813 ft²
2 bedroom flat for sale in Eardley Crescent, London, SW5 — £845,000 • 2 bed • 2 bath • 927 ft²


























































