Period charm and modern updates in central Moseley — no onward chain.
Three double bedrooms including loft conversion
A recently refreshed three-bedroom Victorian mid-terrace in the heart of Moseley, offered with no onward chain and freehold tenure. Period features such as sash bay windows, decorative fireplaces and Minton tile flooring combine with modern fittings including an integrated AEG cooker and updated bathroom suites. The home has been newly renovated with new carpets throughout and presents well for families or professionals seeking a move-in-ready period property.
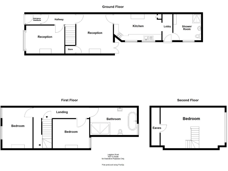
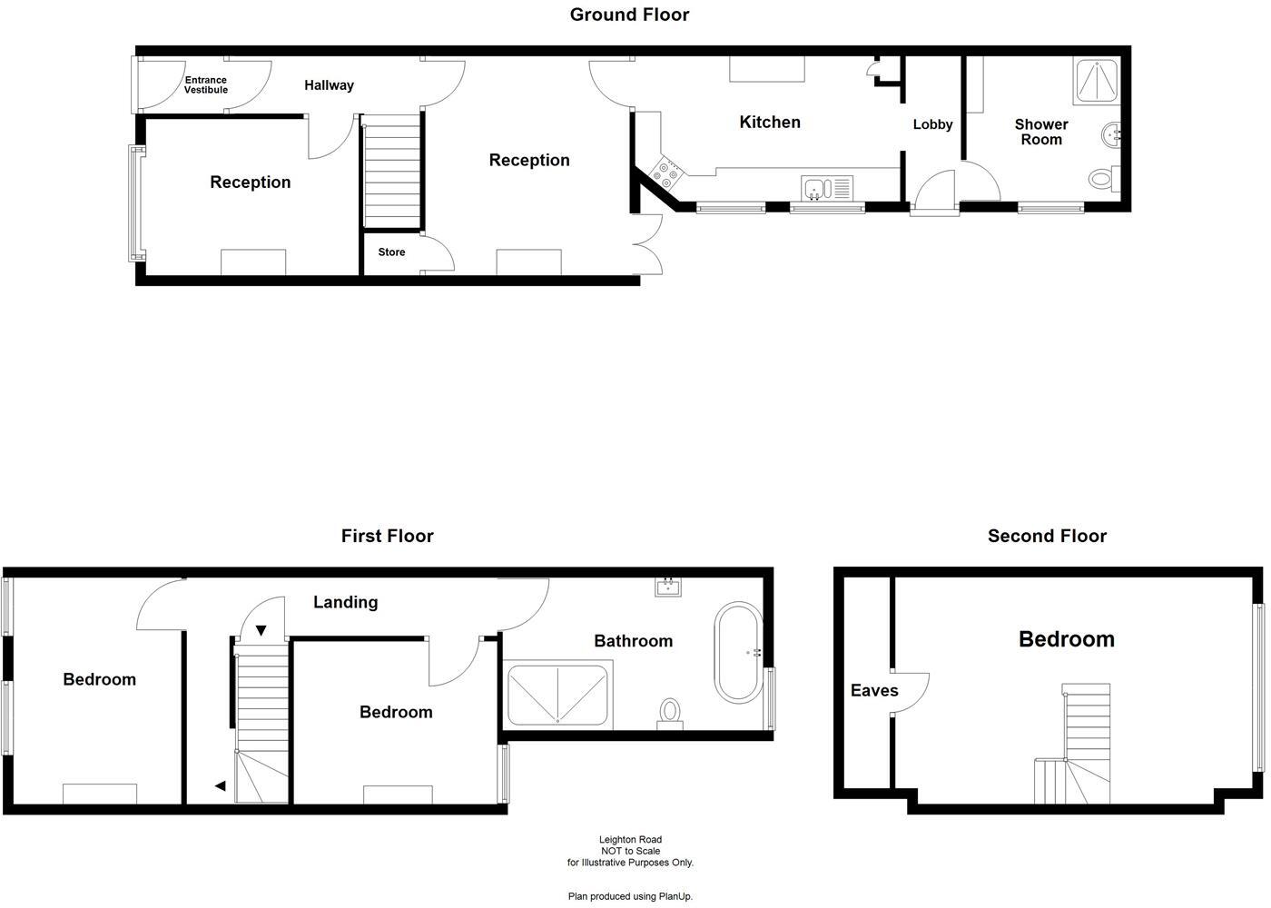
Layout spans three floors: two reception rooms, a galley kitchen, downstairs shower/bathroom and a loft-conversion bedroom. The rear garden is small and low-maintenance with an outhouse and side access. Gas central heating via a Worcester boiler and double glazing (where stated) are in place; the EPC is rated D.
Buyers should note the wider location has higher crime levels and local area deprivation indicators; the street sits within a busy, amenity-rich urban neighbourhood. The property’s solid-brick construction likely lacks modern cavity insulation, and some glazing details are unspecified. While well-presented, there remains scope to modernise some wet-room finishes and further optimise loft and storage to increase value.
This house will suit a family or professional couple wanting a characterful Moseley base with immediate occupancy potential and room to personalise. With excellent local shops, cafes and transport nearby, it’s a practical purchase for those prioritising location and period charm over a large plot.
2 bedroom terraced house for sale in Leighton Road, Moseley Village, B13 — £325,000 • 2 bed • 1 bath • 1077 ft²
3 bedroom terraced house for sale in King Edward Road, Moseley, B13 — £380,000 • 3 bed • 2 bath • 1479 ft²
3 bedroom terraced house for sale in Woodbridge Road, Moseley, Birmingham, B13 — £365,000 • 3 bed • 3 bath • 1085 ft²
3 bedroom terraced house for sale in King Edward Road, Moseley, Birmingham, B13 — £435,000 • 3 bed • 1 bath • 1027 ft²
3 bedroom terraced house for sale in King Edward Road, Birmingham, B13 — £380,000 • 3 bed • 2 bath • 1174 ft²
3 bedroom end of terrace house for sale in Alcester Road, Moseley, Birmingham, B13 — £295,000 • 3 bed • 1 bath • 1335 ft²






















































































