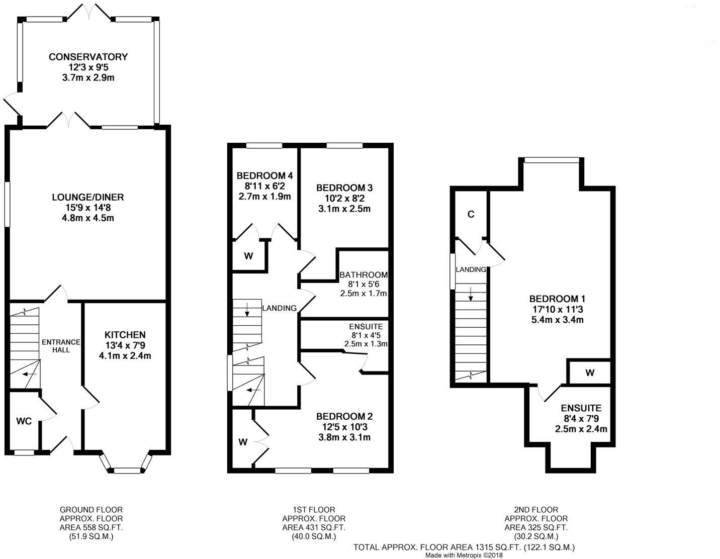
Spacious four-bed home with conservatory, garage and low-maintenance garden..
Four bedrooms across three floors, two bedrooms with en-suite showers
Bright conservatory opening to a low-maintenance landscaped rear garden
Private driveway plus garage with power, lighting and garden access
Built 2007–2011 with double glazing and mains gas central heating
Small plot and end-of-terrace position limit extensive outside space
Above-average local crime level — factor into insurance and security plans
Good local schools, beaches, shops and mainline station within walking distance
Potential to extend subject to planning and boundary checks
This well-presented four-bedroom end-of-terrace home spreads sensible, flexible living across three floors — designed for family life and low-maintenance weekends. The ground floor flows from an open-plan lounge/diner into a bright conservatory that overlooks a landscaped rear garden; the paved layout keeps upkeep minimal and gives direct side access into the garage.
The fitted kitchen/breakfast room and ground floor cloakroom add everyday convenience, while bedrooms across the upper floors include two en-suite shower rooms and built-in wardrobes for storage. The top-floor main bedroom benefits from eaves storage, making the layout practical for a growing household.
Outside there is a private driveway and a single garage with power and lighting. The house sits in a coastal town with easy access to beaches, a mainline station to London, local shops and good primary and secondary schools — all useful for family routines and commuting.
Buyers should note the plot is small and the property is on an end-of-terrace with above-average local crime levels; these are factual considerations when comparing local options. The home was built 2007–2011 and features double glazing and mains gas heating, though buyers wishing to reconfigure or extend should check planning and boundary constraints.
4 bedroom end of terrace house for sale in Watersmead Drive, Littlehampton, West Sussex, BN17 — £415,000 • 4 bed • 3 bath • 1330 ft²
4 bedroom semi-detached house for sale in Watersmead Drive, Littlehampton, BN17 — £425,000 • 4 bed • 3 bath • 1597 ft²
4 bedroom terraced house for sale in Southfields Road, Littlehampton, West Sussex, BN17 — £375,000 • 4 bed • 3 bath • 1534 ft²
4 bedroom semi-detached house for sale in Chanctonbury Road, Rustington, BN16 — £475,000 • 4 bed • 2 bath • 1399 ft²
4 bedroom terraced house for sale in Brookenbee Close, Rustington, BN16 — £375,000 • 4 bed • 1 bath • 1331 ft²
4 bedroom semi-detached house for sale in Worthing Road, Rustington, Littlehampton, West Sussex, BN16 — £550,000 • 4 bed • 2 bath • 1701 ft²


























































































