Chain-free two-bedroom coach house with garage — ideal first home or investment..
Chain-free two-bedroom coach house with garage and off-road parking
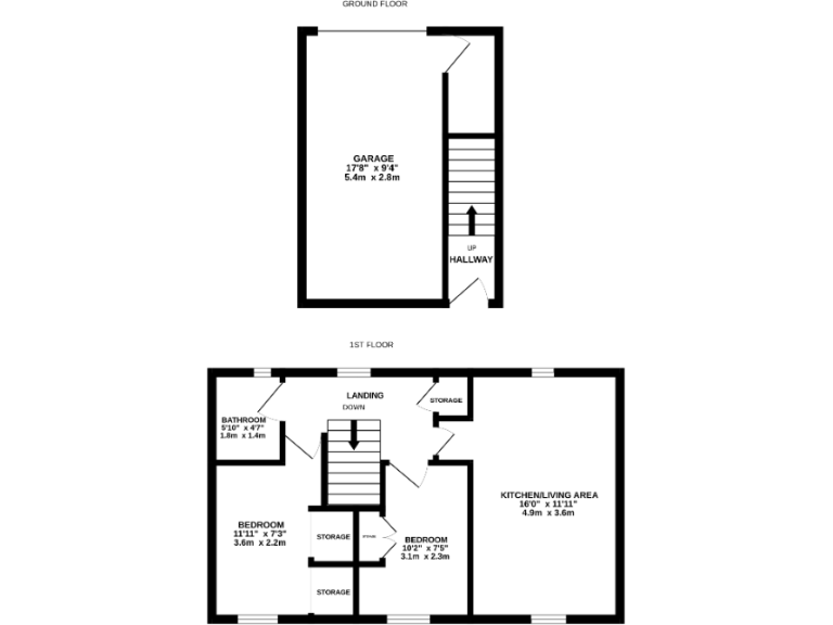
This compact coach house on William Harris Way offers a practical starter home or buy-to-let opportunity with clear running costs and useful parking. The property is arranged over two levels with an open-plan living/kitchen, two bedrooms and a family bathroom, all designed for efficient living. It comes with a garage, off-road parking and a small low-maintenance garden — rare pluses for a property of this size.
Important practical details are straightforward: the home is leasehold with about 131 years remaining, has an annual service charge and a small ground rent, and is offered chain-free. Internally rooms are modest (total about 552 sq ft), so this will suit buyers who prioritise low maintenance and location over large living spaces. Some buyers may want to update or reconfigure finishes to suit modern tastes.
Location is a strength for families and commuters: local primary and secondary schools rated Good are nearby, Colchester town centre is a short drive away, and public transport and amenities are close. Broadband speeds are fast and the property was constructed in the mid-2000s with double glazing and mains gas central heating.
Be aware of the neighbourhood context: local area indicators show higher deprivation than average and crime levels described as average. Viewings are recommended so you can assess room proportions, storage and potential renovation needs before deciding.
2 bedroom end of terrace house for sale in Eight Acre Lane, Colchester, CO2 — £220,000 • 2 bed • 2 bath • 775 ft²
2 bedroom coach house for sale in Turnstile Square, Colchester, CO2 — £200,000 • 2 bed • 1 bath • 722 ft²
2 bedroom coach house for sale in Turnstile Square, Colchester, CO2 — £200,000 • 2 bed • 1 bath • 722 ft²
2 bedroom coach house for sale in Henry Everett Grove, Colchester, CO2 — £230,000 • 2 bed • 1 bath • 814 ft²
2 bedroom coach house for sale in John Hammond Close, Colchester, Essex, CO2 — £180,000 • 2 bed • 1 bath • 543 ft²
2 bedroom coach house for sale in Parade Square, Colchester, Essex, CO2 — £230,000 • 2 bed • 1 bath • 737 ft²














































