Bright three-bedroom home with garden, off-street parking and loft versatility.
Three bedrooms plus loft room for office or storage
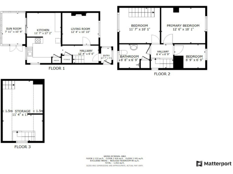
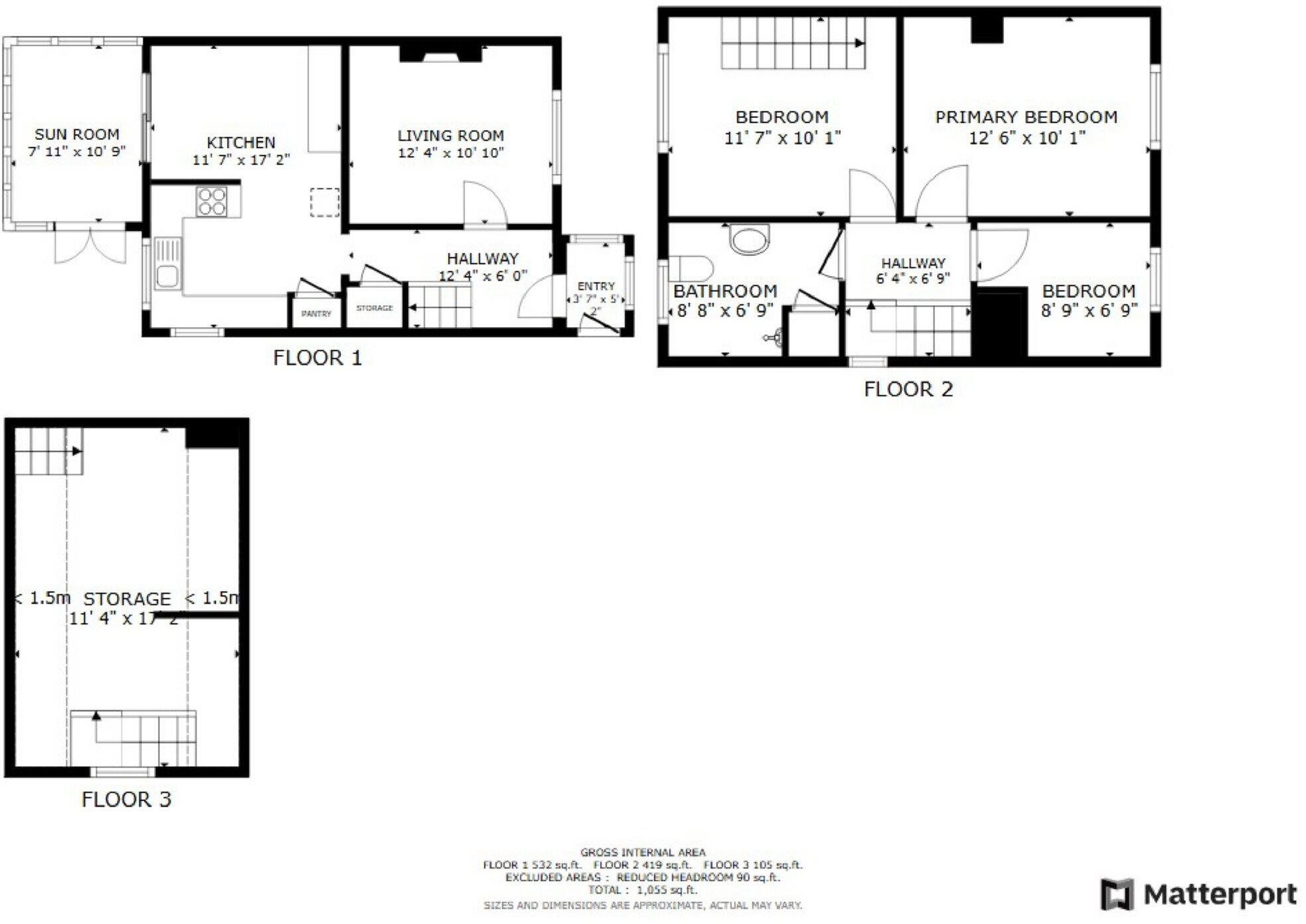
A traditional three-bedroom semi-detached home on Newington Road offering practical space for family life. The property is freehold, around 1,055 sq ft, and includes a conservatory-style ground floor extension, loft room, and a decent rear garden — useful for children or outdoor entertaining. Off-street parking for one vehicle and fast broadband with excellent mobile signal suit modern needs.
Built between 1900–1929 from solid brick (assumed uninsulated walls) and rated EPC D, the house presents clear potential but will suit buyers prepared to invest in energy improvements and general maintenance. The fitted kitchen is modern and bright, while the rest of the layout is traditional with seven main rooms across two floors.
Location strengths include proximity to the station, several primary and secondary schools (two with Good Ofsted ratings), and local amenities. The neighbourhood has high crime and very deprived area indicators and is described as a renting, hard-pressed workforce community — important context for buyers weighing local environment and resale or rental prospects.
This property will appeal to families wanting immediate, usable space and to investors or renovators who can add value through thermal upgrades and cosmetic refurbishment. The combination of size, garden and parking at the asking price represents tangible potential, but buyers should factor in improvement costs and local area challenges.
3 bedroom semi-detached house for sale in Hamilton Close, Ramsgate, CT12 — £250,000 • 3 bed • 1 bath • 836 ft²
3 bedroom semi-detached house for sale in Station Approach Road, Ramsgate, CT11 — £350,000 • 3 bed • 1 bath • 1101 ft²
4 bedroom semi-detached house for sale in St. Lukes Avenue, Ramsgate, CT11 — £350,000 • 4 bed • 2 bath • 1435 ft²
4 bedroom semi-detached house for sale in Beverley Way, Ramsgate, Kent, CT12 — £350,000 • 4 bed • 1 bath • 1448 ft²
3 bedroom semi-detached house for sale in Whitehall Road, Ramsgate, CT12 — £270,000 • 3 bed • 1 bath • 846 ft²
4 bedroom semi-detached house for sale in Telham Avenue, Ramsgate, CT12 — £325,000 • 4 bed • 1 bath • 1152 ft²


























































































