Period character, two parking spaces and great transport links — ideal for buyers or investors..
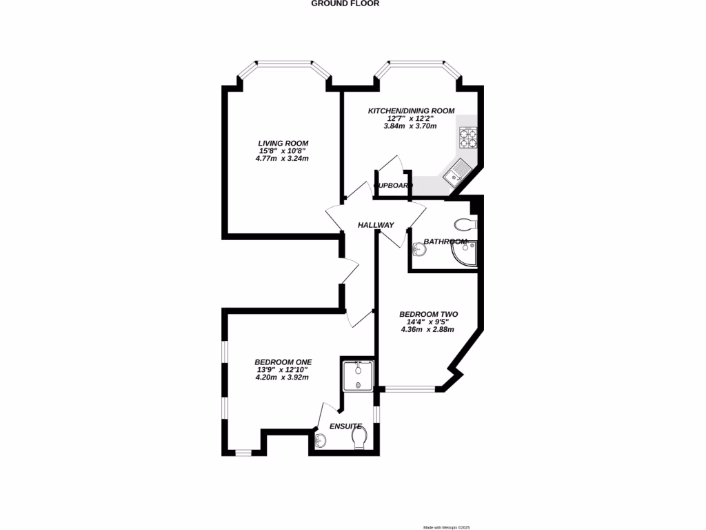
Two double bedrooms and two bathrooms
Set within a charming period building, this two-bedroom apartment makes a strong first-step purchase or a straightforward buy-to-let. High ceilings, large bay windows and well-proportioned rooms create a bright, characterful living space totalling approximately 630 sq ft. The layout includes two double bedrooms, two bathrooms and an open-plan feel between the kitchen and living areas.
Practical strengths include two allocated off-street parking spaces at the rear, fast broadband and excellent mobile signal — useful for commuters and home-workers. The location offers easy access to the A331 and is within walking distance of the station, with a mix of local amenities close by and several well-regarded schools in the area.
This is a leasehold property with 116 years remaining. Annual service charge is £250 and ground rent is £250 per year; both are low but should be confirmed by your solicitor. The EPC rating is D (59) and the main heating runs off an electric boiler and radiators, which may affect running costs compared with gas-heated homes.
Buyers should be aware of some important considerations: the property sits in an area with higher local crime levels, and the EPC and electric heating may mean higher energy bills. Overall, the apartment offers strong character, convenient parking and good transport links, making it well-suited to first-time buyers or investors prepared to factor in running costs and local area factors.
2 bedroom flat for sale in Wallis Square, Farnborough, Hampshire, GU14 — £250,000 • 2 bed • 1 bath • 519 ft²
2 bedroom flat for sale in Church Road West, Farnborough, Hampshire, GU14 — £240,000 • 2 bed • 1 bath • 486 ft²
2 bedroom flat for sale in Farnborough Road, Farnborough, Hampshire, GU14 — £200,000 • 2 bed • 2 bath • 467 ft²
2 bedroom apartment for sale in Bedford Court, Farnborough, GU14 — £220,000 • 2 bed • 2 bath • 598 ft²
2 bedroom flat for sale in Claremont Place, Blackwater, Camberley, Surrey, GU17 — £220,000 • 2 bed • 2 bath • 579 ft²
2 bedroom apartment for sale in Farnborough Road, Farnborough, Hampshire, GU14 — £350,000 • 2 bed • 2 bath • 749 ft²


































































