**Standout Features:**
- **Bright Balcony**: Enjoy views of communal gardens from your own private balcony.
- **Newly Renovated**: Freshly redecorated with new carpet throughout.
- **Integrated Security**: Equipped with intruder alarms, video entry system, and 24-hour Careline assistance.
- **Community Amenities**: Owners’ Lounge, regular social events, and a guest suite for visitors.
- **Prime Location**: Close to shops, cafes, and transport links in Market Harborough.
- **Efficient Heating**: Air Source Heat Pump for energy-efficient heating.
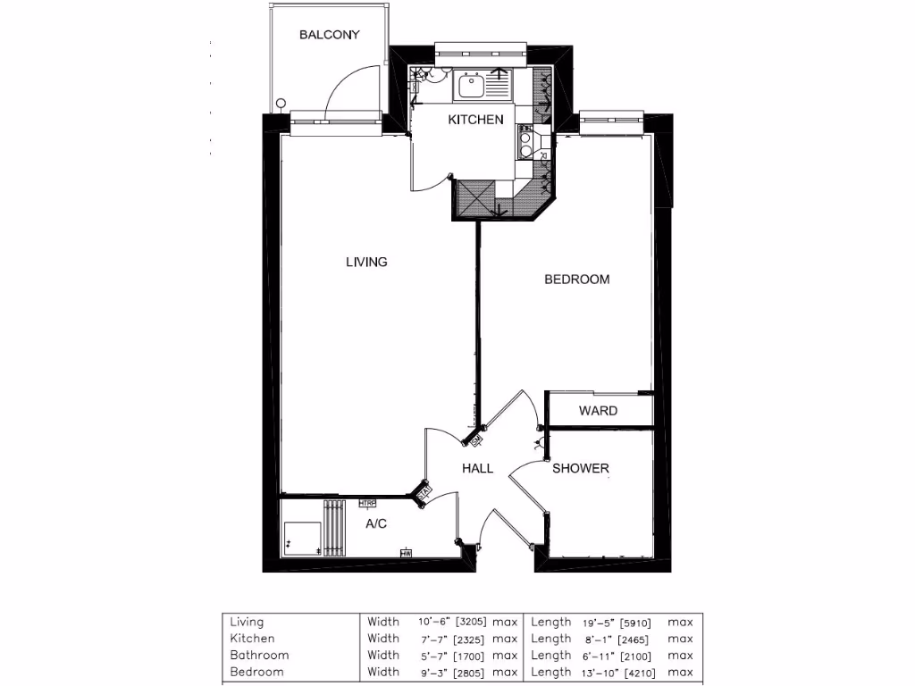
This charming one-bedroom first-floor retirement apartment in Maxwell Lodge blends comfort with contemporary living, perfect for those seeking an engaging community atmosphere. Recently renovated, the space features a light-filled living room with a cozy electric fireplace and French doors leading to a delightful balcony overlooking communal gardens. The well-equipped kitchen boasts modern appliances and ample cabinetry, while the spacious bedroom offers convenient built-in mirrored wardrobes and a serene setting for relaxation.
Located in the picturesque market town of Market Harborough, residents enjoy convenient access to local shops, cafes, and beautiful walking paths along the River Welland. With ample community-focused amenities, including an owners’ lounge and events designed to foster social connections, this property not only offers a comfortable living experience but also a sense of belonging. Though there is a service charge of £3,219.47 and ground rent of £653.04, the exceptional facilities and community support available make this an attractive option for those over 60. Don't miss the chance to make this lovely apartment your new haven!
1 bedroom retirement property for sale in Maxwell Lodge, Market Harborough, LE16 — £170,000 • 1 bed • 1 bath • 502 ft²
1 bedroom apartment for sale in Northampton Road, Market Harborough, LE16 — £205,000 • 1 bed • 1 bath • 596 ft²
2 bedroom retirement property for sale in Maxwell Lodge, Northampton Road, Market Harborough, LE16 — £270,000 • 2 bed • 1 bath • 490 ft²
1 bedroom retirement property for sale in Northampton Road, Market Harborough, LE16 — £165,000 • 1 bed • 1 bath • 634 ft²
2 bedroom retirement property for sale in Northampton Road, Market Harborough, LE16 — £320,000 • 2 bed • 1 bath • 657 ft²
2 bedroom retirement property for sale in Northampton Road, Market Harborough, LE16 — £325,000 • 2 bed • 1 bath • 657 ft²


























































































































