Period family home on 4.57 acres with development potential, subject to planning.
4.57 acres (STS) of land—substantial private grounds and field
Development potential for up to 9 dwellings, subject to planning and covenant removal
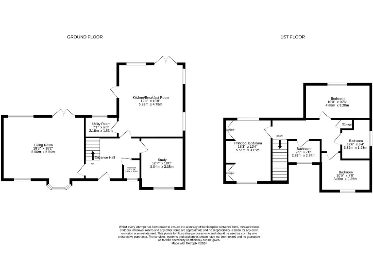
Detached four-bedroom house with large reception room and study
Single family bathroom only—may be a limitation for larger families
Oil-fired boiler and radiators; higher running costs possible
Cavity walls likely uninsulated (assumed) — energy upgrade opportunity
Garages, workshop and outdoor office provide versatile ancillary space
Built 1930-1949—period character but may need sympathetic refurbishment
Set deep in the Ardleigh countryside, Croft Cottage is a traditional four-bedroom detached home on a substantial 4.57-acre (STS) plot. The house offers a large reception room with a wood-burning stove, a practical kitchen with utility, a dedicated study, and useful outbuildings including garages, a workshop and an outdoor office. The grounds are spacious and private, suitable for outdoor living or small-scale equestrian use subject to permissions.
The site’s most significant asset is the substantial field with stated development potential for up to nine dwellings, conditional on planning permission and the removal of an existing covenant. This makes the plot appealing to buyers seeking long-term value, developers (subject to consents) or families wanting wide open space and room for future projects.
Buyers should note material constraints: the house has a single family bathroom, uses oil-fired central heating, and the cavity walls are likely uninsulated (as built). These factors may mean higher running costs and scope for energy-focused improvement works. Any development or change of use of the field will require planning permission and legal changes to the covenant.
Overall, Croft Cottage suits buyers who value rural privacy, generous outdoor space and period character, and who are comfortable with updating and managing a large plot. It will particularly attract families or purchasers looking for a property with clear renovation or development upside, mindful of the permissions and costs involved.
4 bedroom detached house for sale in Burtons Green, Halstead, Essex, CO9 — £1,225,000 • 4 bed • 3 bath • 2379 ft²
3 bedroom detached house for sale in Harts Lane, Ardleigh, Colchester, Essex, CO7 — £675,000 • 3 bed • 2 bath • 4005 ft²
4 bedroom cottage for sale in Great Bromley, CO7 — £825,000 • 4 bed • 4 bath • 2138 ft²
3 bedroom detached house for sale in East Bergholt, Colchester, CO7 — £700,000 • 3 bed • 2 bath • 1263 ft²
7 bedroom detached house for sale in East Bergholt, Colchester, CO7 — £580,000 • 7 bed • 4 bath • 3125 ft²
4 bedroom semi-detached house for sale in Harwich Road, Little Bentley, Colchester, Essex, CO7 — £795,000 • 4 bed • 2 bath • 1569 ft²






























































































































