Spacious family home with separate flats and barn, about 1.5 acres of land.
Five-bedroom detached house with large living spaces and balconies
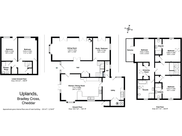
Uplands is a substantial five-bedroom detached house set in roughly 1.5 acres of gardens, orchard and paddock just west of Cheddar. The main house offers generous, character-filled accommodation across three floors with a large kitchen/dining room, two reception rooms, principal suite with dressing room and balconies that take in southerly and easterly views across open countryside. Double glazing and LPG-fired central heating serve the house; the property also benefits from plentiful off-street parking and excellent mobile reception.
The site includes two self-contained flats and a detached barn that has held lawful dwelling status for over four years, creating obvious income or multi-generational living potential. A planning application for an extension to the barn is in preparation; a small cottage and further land are also available by separate negotiation. Rights of way run along the back drive in favour of neighbouring properties and to the cottage.
Practical points to note: mains water and electricity are connected but drainage is private; broadband speeds are slow and the property runs on LPG rather than mains gas. EPC ratings are Band E for the house and the flats. The plot is large and offers scope for landscaping, small-scale agricultural use or continuing the current rental income, but the size and tenure of outbuildings mean any buyer should check services and permissions carefully.
This home will suit families seeking space and privacy, buyers wanting an income-producing element, or those looking for a country retreat within easy reach of Cheddar village and regional centres. The combination of mature gardens, orchard, countryside views and separate accommodation makes Uplands an uncommon rural opportunity.
5 bedroom detached house for sale in Flats, Barn and Field, Bradley Cross, Cheddar, Somerset, BS27 — £1,675,000 • 5 bed • 3 bath • 4091 ft²
1 bedroom detached house for sale in Countryside near Cheddar, BS27 — £450,000 • 1 bed • 1 bath • 498 ft²
5 bedroom detached house for sale in Exclusive, gated property above Cheddar, BS27 — £1,500,000 • 5 bed • 4 bath • 5000 ft²
5 bedroom detached house for sale in Gated house above Cheddar with superb views., BS27 — £1,750,000 • 5 bed • 4 bath • 5700 ft²
4 bedroom detached house for sale in Round Oak Grove, Cheddar, BS27 — £475,000 • 4 bed • 2 bath • 1727 ft²
5 bedroom detached house for sale in Westfield Lane, Draycott, Cheddar, Somerset, BS27 — £1,100,000 • 5 bed • 3 bath • 1869 ft²


























































































































































