Spacious four-bedroom with garden near Peckham Rye transport links.
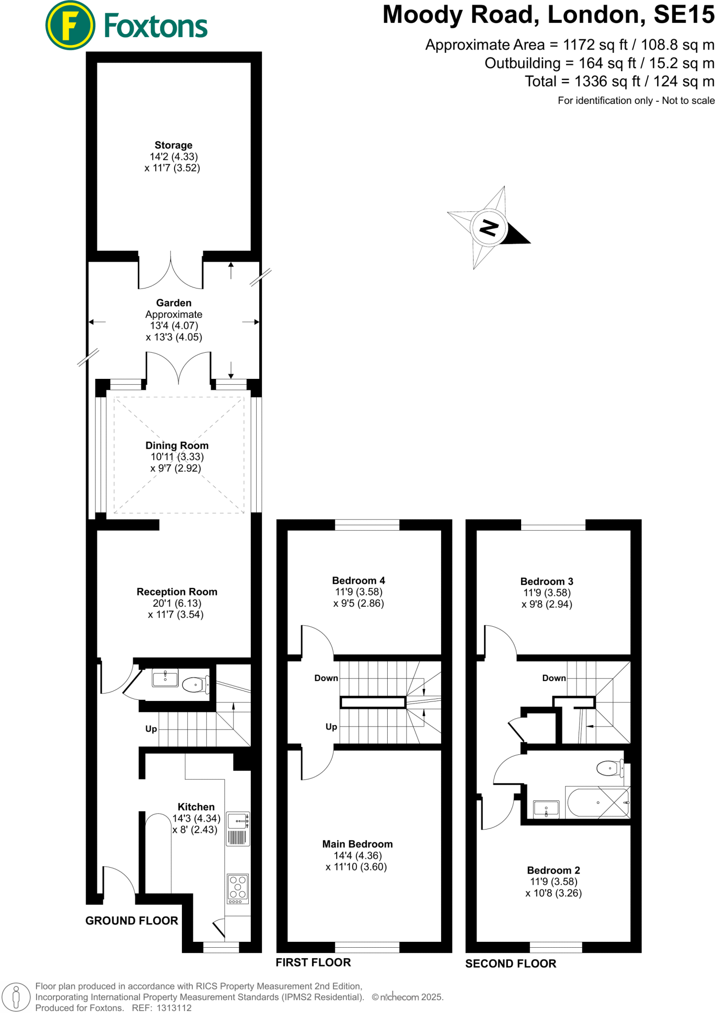
Freehold end-terrace on Moody Road, approx. 1,336 sq ft
Set over three floors, this freehold end-terrace provides practical family living with four bedrooms and a private rear garden. At approximately 1,336 sq ft, the home balances generous bedroom space with well-presented communal areas, including a bright reception room and a modern kitchen that flows into the dining area — ideal for everyday life and entertaining.
Located on Moody Road, the property sits moments from Peckham Road, Burgess Park and Peckham Rye station, giving quick access to shops, cafes and transport. Broadband speeds are fast and mobile signal is excellent, useful for remote working and family connectivity. Local schools nearby include several rated Good and Outstanding, which will appeal to families.
Buyers should note the neighbourhood records above-average crime and is classed as deprived in wider area metrics; purchasers should factor this into insurance and security considerations. The property was built between 1996–2002 and has double glazing of unknown installation date; while overall presented well, some rooms — and the kitchen footprint — are compact and may suit buyers seeking efficient rather than expansive living space.
4 bedroom terraced house for sale in Blakes Road, Peckham, London, SE15 — £675,000 • 4 bed • 2 bath • 1464 ft²
3 bedroom house for sale in Ashmore Close, Peckham, London, SE15 — £625,000 • 3 bed • 1 bath • 743 ft²
4 bedroom house for sale in Bushey Hill Road, Camberwell, London, SE5 — £1,300,000 • 4 bed • 1 bath • 1777 ft²
4 bedroom end of terrace house for sale in Radnor Road, London, SE15 — £675,000 • 4 bed • 2 bath • 1077 ft²
3 bedroom house for sale in Lyndhurst Grove, Peckham Rye, London, SE15 — £900,000 • 3 bed • 1 bath • 1161 ft²
2 bedroom house for sale in Southampton Way, Peckham, London, SE5 — £500,000 • 2 bed • 1 bath • 765 ft²


























































































































































































































































