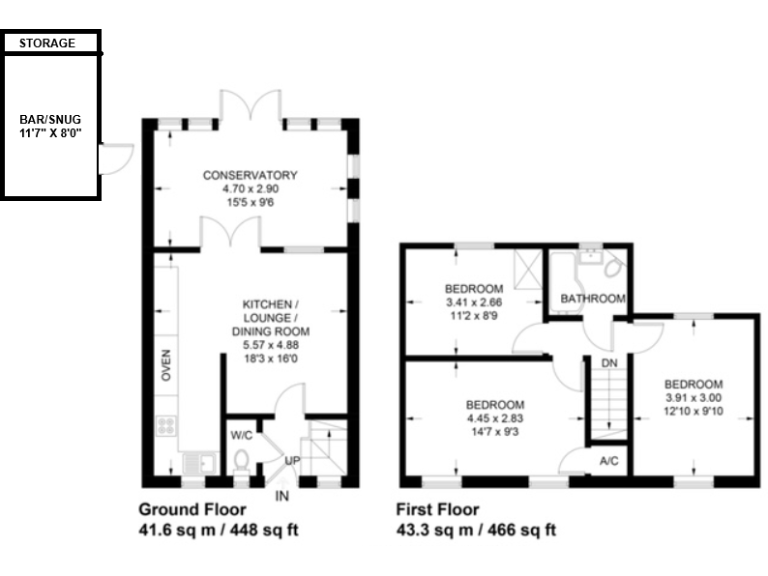
Turnkey semi in peaceful Tiptree with conservatory, driveway and converted garage snug..
Immaculate three-bedroom semi-detached home, ready to move into
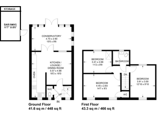
Stylish modern kitchen, family bathroom and ground-floor cloakroom
Bright conservatory opening onto lawned garden and patio
Converted garage now bar/snug; separate storage area retained
Private driveway with off-street parking for 1–2 cars
Freehold tenure; low local crime and no flood risk
Slow broadband speeds — consider connection options
Moderate council tax; mid-sized family footprint (approx 914 sq ft)
This immaculate three-bedroom semi-detached home in Tiptree offers ready-to-move-in accommodation with practical family-friendly layout. The property combines a stylish modern kitchen and bathroom with a bright conservatory that extends living space into the rear garden. A converted garage provides a versatile bar/snug with retained storage, while a private driveway provides off-street parking for one to two vehicles.
Internally the house is presented to a high standard with herringbone-style flooring on the ground floor, contemporary fittings and well-proportioned rooms. The principal bedroom and two further bedrooms work well for family life, home working, or guest use. The conservatory and patio garden create a pleasant entertaining flow in warmer months.
Notable positives include freehold tenure, low local crime, no flood risk and excellent mobile signal. Practical drawbacks to note: broadband speeds are slow, council tax is moderate, and the garage has been converted (electric up-and-over door and storage area remain). Buyers seeking modern, turnkey homes in a quiet suburb will find this property especially appealing, but those needing high-speed internet or an intact garage should check suitability before committing.
Overall this is a mid-sized family home in a prosperous, low-crime neighbourhood, presented in move-in condition and ready for immediate occupation. A viewing is advised to appreciate the standard of finish and the flexible converted garage/snug space.
3 bedroom semi-detached house for sale in Anchor Road, Tiptree , CO5 — £385,000 • 3 bed • 2 bath • 828 ft²
3 bedroom terraced house for sale in Brookland, Tiptree, CO5 — £350,000 • 3 bed • 1 bath • 862 ft²
3 bedroom semi-detached house for sale in Walnut Tree Way, Tiptree, Colchester, CO5 — £260,000 • 3 bed • 1 bath • 520 ft²
4 bedroom detached house for sale in Wilkin Drive, Tiptree, Colchester, CO5 — £450,000 • 4 bed • 2 bath • 913 ft²
5 bedroom detached house for sale in Luther Drive, Tiptree, COLCHESTER, CO5 — £500,000 • 5 bed • 3 bath • 1615 ft²
4 bedroom link detached house for sale in Kiltie Road, Tiptree, Colchester, Essex, CO5 — £425,000 • 4 bed • 2 bath • 1060 ft²














































































































