ML3 7HL - 5 bedroom detached house for sale in Cornhill Village, Loca…

View on Property Piper

5 bedroom detached house for sale in Cornhill Village, Located off Strathaven, Hamilton, ML3 7HL, ML3

Summary - Cornhill Village, Located off Strathaven, Hamilton, ML3 7HL ML3 7HL

5 bed 3 bath Detached

Brand-new three-level family home with master suite and LBTT paid — move in this year.
Five bedrooms plus a dedicated study room
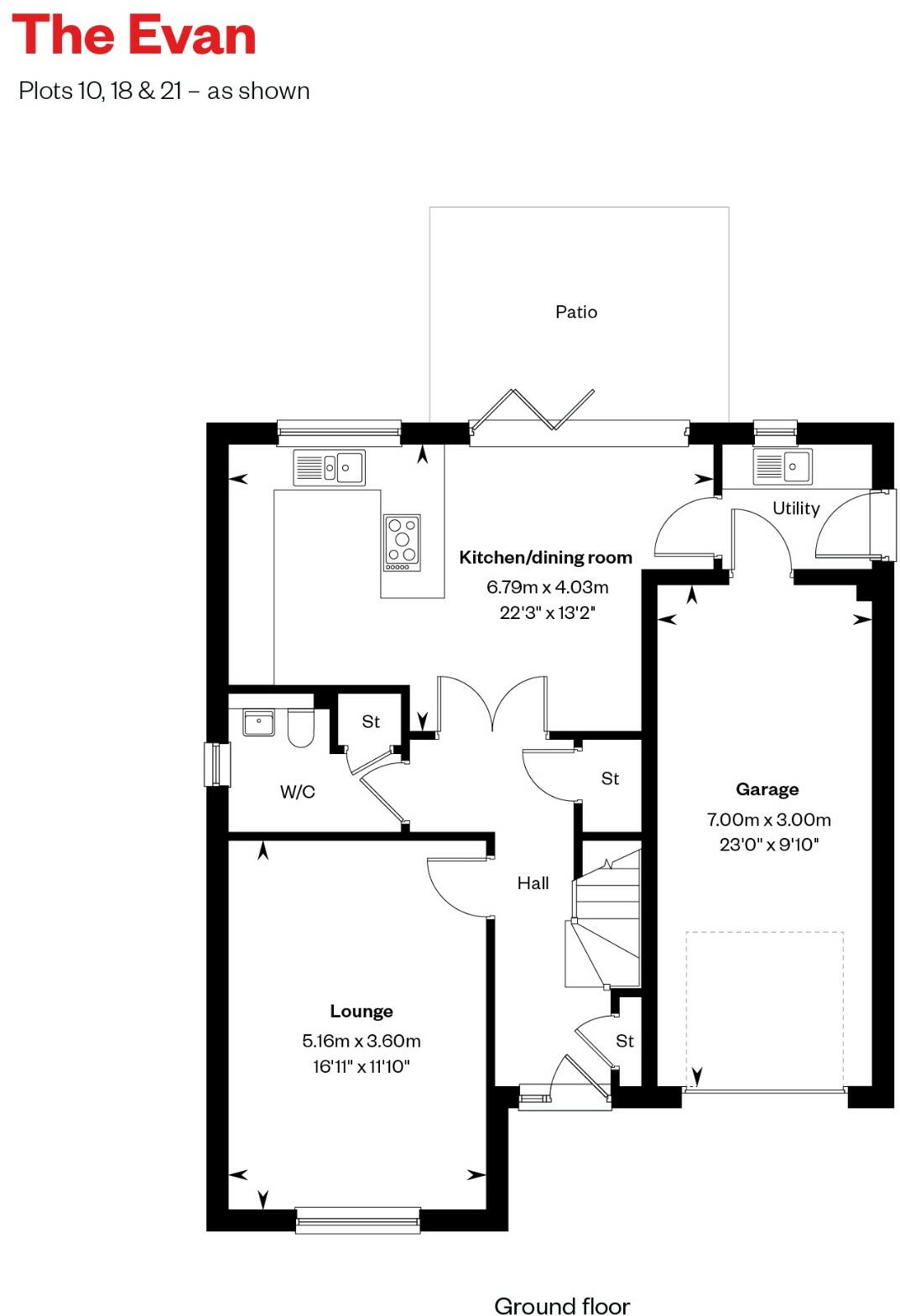
Step up to a spacious, brand-new five-bedroom home arranged across three floors, finished to a high standard and ready to move into this year. The Evan homestyle provides flexible family living with an open-plan kitchen/dining area and bi-fold doors that lead to a private garden, a separate lounge, utility room and single garage with a two-car driveway.

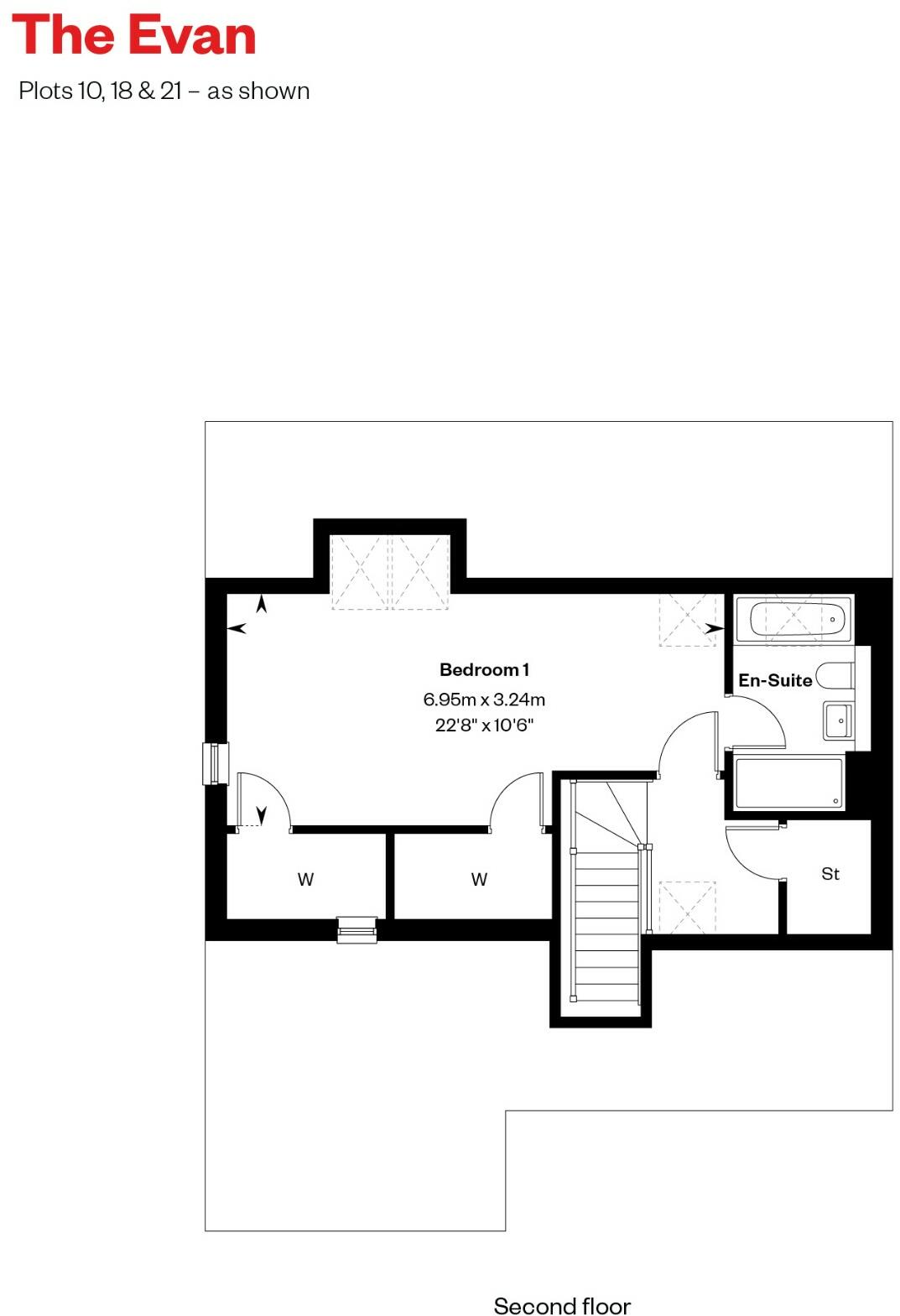
The second floor is dedicated to a generous master suite with walk-in wardrobe, premium en suite and space that could serve as a snug or playroom. Four further bedrooms and a study on the first floor give plenty of space for children, guests or home working. The property totals about 2,070 sq ft, offering good internal space for growing families.

Practical benefits include a flooring package included, fast broadband, and financial incentives: LBTT costs covered (saving over £18,000) and a Part Exchange option to simplify your move. These make the purchase more affordable and allow you to settle in quickly, potentially before Christmas.

Be aware this is a new-build within a development marketed by the builder. Specification and finishes may differ from showhome imagery. The wider area is classified as having high levels of deprivation — consider local services and context when viewing. Mobile signal is average. Overall size is typical for modern suburban family homes.

Property Details

Brochure Descriptions

Image Descriptions

Floorplan Description

Rooms

Textual Property Features

Target Audience

AI Tags

Detected Visual Features

Nearest Bars And Restaurants

,,,,}

Nearest General Shops

,,}

Nearest Grocery shops

,,}

Nearest Supermarkets

,,}

Nearest Religious buildings

,,}

Nearest Medical buildings

,,,}

Nearest Airports

,}

Nearest Leisure Facilities

,,,,}

Nearest Tourist attractions

,,}

Nearest Train stations

,,,,}

Nearest Bus stations and stops

,,,,}

Nearest Hotels

,,}

Tags

Local Market Stats

Similar Properties

Meta

High Res Images

Compatible Images

Low res Images

Thumbnails

Raw Images

High Res Floorplan Images

Compatible Floorplan Images

Low res Floorplan Images

FloorplanImages Thumbnail

Raw Floorplan Images